cancel
Showing results for 
Search instead for 
Did you mean: 
cancel
Showing results for 
Search instead for 
Did you mean: 
Our customers might be experiencing service disruptions due to a global outage at Microsoft Azure. Our team is actively monitoring the situation and working to minimize the impact. Thank you for your patience and understanding.
Documentation
About Archicad's documenting tools, views, model filtering, layouts, publishing, etc.

DRAWING PEN COLOR IN LAYOUT

Llian
Advocate
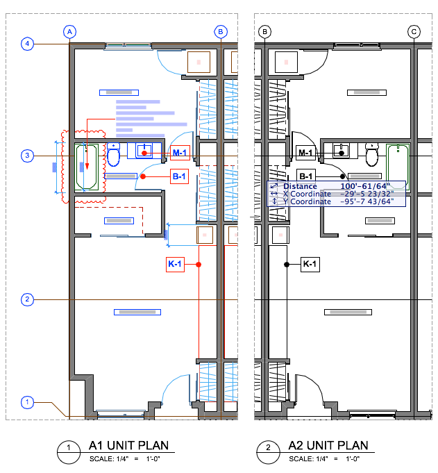
The A2 plan drawing is a copy of A1. Both have the same setting [pen] but A2 is not showing the pen color as in A1 drawing - closet, bathrm fixtures, labels and text as in A1. What am I missing here?

Screen shot 2016-06-02 at 2.25.47 PM.png
Lilian Seow LEED AP | cSBA | CAPM | PMP
AC 29 USA FULL | Windows 11 Enterprise i5 3.10GHz | Archicad-user since 1994!
4 REPLIES 4
Anonymous
Not applicable
Check the settings in the Drawing, not in the view. You can change the pen set there for the layout.
Llian
Advocate
Thanks...I am still puzzled...it is the same drawing...I just copied and pasted the same A1 and it is in all black.....no more color now....what have I done now?
Lilian Seow LEED AP | cSBA | CAPM | PMP
AC 29 USA FULL | Windows 11 Enterprise i5 3.10GHz | Archicad-user since 1994!
Llian
Advocate
Here's my screenshot of my drawing and settings....where is the pen setting for layout?

But I am puzzled why I can bring in the first drawing in color and the rest now are in black in layout from the same drawing...
Screen shot 2016-06-02 at 8.14.03 PM.png
Lilian Seow LEED AP | cSBA | CAPM | PMP
AC 29 USA FULL | Windows 11 Enterprise i5 3.10GHz | Archicad-user since 1994!
Llian
Advocate
ok...got it...i clicked on the drawing in the layout and there's the setting....
Lilian Seow LEED AP | cSBA | CAPM | PMP
AC 29 USA FULL | Windows 11 Enterprise i5 3.10GHz | Archicad-user since 1994!