cancel
Showing results for 
Search instead for 
Did you mean: 
cancel
Showing results for 
Search instead for 
Did you mean: 
Documentation
About Archicad's documenting tools, views, model filtering, layouts, publishing, etc.
SOLVED!

transparent background grayed out

Dave Brach
Expert

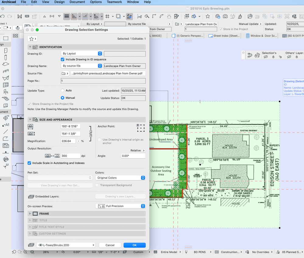
I would like a pdf in a plan view to have an opaque background.  When I drag the pdf into a plan view it has transparent background, when I drag it into a layout it is opaque.  In both instances the "transparent background" checkbox is grayed out.

 

Operating system used: Mac Apple Silicon Sequoia 15.6.1


Screenshot 2025-10-20 at 11.46.20 AM.png
Dave Brach/architect AC28 Macbook M4 Pro OS Sequoia
1 ACCEPTED SOLUTION

Accepted Solutions
Solution
Barry Kelly
Moderator

When you place a PDF as a drawing, you have no choice for the transparent background.

This option is only active when you are placing a view as a drawing on a layout.

 

Barry.

One of the forum moderators.
Versions 6.5 to 27
i7-10700 @ 2.9Ghz, 32GB ram, GeForce RTX 2060 (6GB), Windows 10
Lenovo Thinkpad - i7-1270P 2.20 GHz, 32GB RAM, Nvidia T550, Windows 11

View solution in original post

5 REPLIES 5
Lingwisyer
Guru

Does the PDF actually contain transparency? Not sure why it would present differently in your two cases...

AC22-28 AUS 3110Help Those Help You - Add a Signature
Self-taught, bend it till it breaksCreating a Thread
Win11 | i9 10850K | 64GB | RX6600 Win11 | R5 2600 | 16GB | GTX1660

It's not just this pdf.  I have tried many pdf files and they all do the same thing:  transparent background when added to a view, opaque background when added to a layout, "Transparent Background" button grayed out.  Any random pdf, same thing.  What does it do for you?

Dave Brach/architect AC28 Macbook M4 Pro OS Sequoia

Ok, I just realized that I can use display order to correct this.  Duh.  But one thing does not respond to display order: the titles of drawings on a layout: there is no way to send those to back?


Screenshot 2025-10-21 at 8.55.12 AM.png
Dave Brach/architect AC28 Macbook M4 Pro OS Sequoia

We generally only use PDFs for reference or stitch them directly into the end document... so I am not sure about the interaction...

AC22-28 AUS 3110Help Those Help You - Add a Signature
Self-taught, bend it till it breaksCreating a Thread
Win11 | i9 10850K | 64GB | RX6600 Win11 | R5 2600 | 16GB | GTX1660
Solution
Barry Kelly
Moderator

When you place a PDF as a drawing, you have no choice for the transparent background.

This option is only active when you are placing a view as a drawing on a layout.

 

Barry.

One of the forum moderators.
Versions 6.5 to 27
i7-10700 @ 2.9Ghz, 32GB ram, GeForce RTX 2060 (6GB), Windows 10
Lenovo Thinkpad - i7-1270P 2.20 GHz, 32GB RAM, Nvidia T550, Windows 11

Setup info provided by author