cancelar
Mostrando resultados para 
Pesquisar então 
Você quer dizer: 
cancelar
Mostrando resultados para 
Pesquisar então 
Você quer dizer: 

Projeto Legal com Archicad: Área Construída

Rita Gurjao
Community Manager
Community Manager

Este artigo foi criado por um Treinador Certificado Graphisoft Brasil 2023!

 

Convidamos os Treinadores Certificados da Graphisoft Brasil para compartilhar dicas e truques no Archicad. Neste artigo, vamos aprender com o @Diego Barreto como fazer um Projeto Legal com Archicad: Área Construída.

 

Obrigada por compartilhar seu conhecimento com outros usuários apaixonados pelo Archicad.


Este artigo faz parte de uma série de artigos sobre o desenvolvimento de um Projeto Legal com Archicad. No primeiro artigo nós apresentamos a construção do terreno e a extração de seu quantitativo de área. Com o terreno modelado agora podemos calcular todos os índices urbanísticos do nosso projeto. Neste artigo vamos desenvolver a modelagem e cálculo de área construída.


O modelo utilizado nas imagens ilustrativas deste artigo foram desenvolvidos pela SALTE - SALA TÉCNICA SOB DEMANDA e pertencem a projetos construidos integralmente em Archicad 26, passando por todas as etapas de projeto. Os procedimentos aqui adotados também fazem parte dos Procedimentos Operacionais da SALTE e atendem às nossas necessidades. Sempre avalie se o método apresentado também atende às suas.


Memorial de cálculo - Pavimento térreoMemorial de cálculo - Pavimento térreo

 

Área Construída e objetivo de modelagem

Sabemos que a definição total do que se entende por área construída computável sofrerá variações regionais de acordo com a legislação vigente. Um ou outro elemento pode ou não ser desconsiderado no cálculo da sua localidade. O fato é que se trata de uma informação que deve ser calculada a partir da área de piso da edificação projetada. Trata-se também de uma informação bidimensional extraída a partir da vista em Planta Baixa e necessita ser auditável. É a partir destas informações que devemos construir os objetivos do nosso entregável. Para facilitar nossa construção vamos resumir as características do que construiremos:

  • Elemento bidimensional que desconsidera possíveis desníveis ou inclinações;
  • Elemento existente, mas não construtivo pois não interage com elementos tridimensionais do modelo;
  • Será modelado em cada Piso do modelo;
  • Visível apenas em Planta Baixa, inexistindo alturas;
  • Necessita receber identificação por ID;
  • Necessita ser dimensionado para auditoria de órgão competente;
  • Necessita extração de quantitativo de área em m².

A partir dos elementos apresentados podemos construir objetivos de nossa modelagem:
1. Modelar elementos bidimensionais vinculados a cada Piso do projeto e vinculados ao Ponto de Vista em Planta;
2. Identificar e dimensionar elementos modelados a partir de Cotas Lineares e de Ângulo a partir de vértices e arestas do elemento;
3. Quantificar área de elemento modelado separando por Piso e somando total de área existente no projeto.

Modelagem e documentação de Área Construída

A partir destas informações podemos começar escolhendo qual ferramenta utilizaremos para esta finalidade. Seria possível utilizar a ferramenta Trama ou a ferramenta Zona. Ambas alcançariam os resultados esperados. No entanto, optamos pela ferramenta Trama pois não necessitamos de informação de altura fornecida pela Zona. Além disso, nossas entregas de Planta de Área Construída são realizadas apenas para auditoria em 2D, não necessitando na visualização 3D deste elemento.
Escolhida a ferramenta, vamos entender como a nossa entrega deve acontecer:
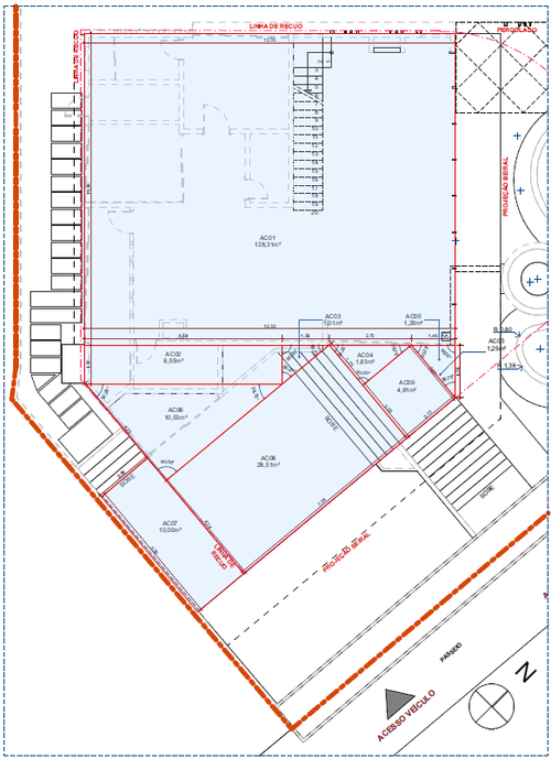
IMAGEM02.png
Nosso memorial de cálculo de área construída deve receber não apenas um polígono delimitando toda a edificação. Em nossa entrega devemos construir polígonos facilmente auditáveis. Deste modo, dividimos a edificação em um conjunto de polígonos preferencialmente retangulares. Além disso, cada um destes polígonos deve apresentar um ID próprio e a área individual.
Como entregamos uma planta própria apenas para este memorial de cálculo, devemos configurar uma Combinação de Vegetais própria para esta Vista. Em resumo, criamos um Vegetal ZON - Área Construída e um ANT - Anotações de Área Construída. Criamos uma Combinação de Vegetais intitulada PL - Área Construída com destaque para esta anotação ativa e outras anotações desativadas.
IMAGEM 03 (1).png
Com os Vegetais configurados, modelamos todo o perímetro de área construída de nosso pavimento. Por aqui temos como procedimento que o ID seja construído a partir de <AC>+<sequência numérica>, mas você pode definir seu próprio padrão. Por fim usaremos as ferramentas de documentação Cota e Rótulo de texto com as propriedades <ID do elemento> e <Área> como textos automáticos.

Extração de informação de Área Construída

Por fim criamos um Mapa tendo como critério a extração de informações de toda Trama em vegetal ZON - Área construída. Destes elementos requisita-se o Piso de Origem, o ID e a área.
IMAGEM 04 (1).png
O resultado é um mapa que separa por Piso a área de cada polígono e a área total de cada elemento. Caso necessite, você pode adicionar um texto personalizado para registrar as dimensões de cada lado do polígono em Mapa. Para nossas entregas, o resultado apresentado já contempla o necessário para auditoria e aprovação

IMAGEM 05 (1).png

 

Assim construimos nosso memorial de cálculo de Área Construída por aqui. 

 

Gostaria de conversar sobre esse método ou compartilhar outra forma de fazê-lo? Fique a vontade para apresentar a sua abordagem criando uma nova postagem em nossos fóruns. Não esqueça de marcar o meu perfil para que possamos conversar!


Sobre o autor:

 

Diego Azevedo.jpgDiego Azevedo I @Diego Barreto 

Mestre em Arquitetura e Urbanismo pela UFRN e Arquiteto e Urbanista pela UniFacex. Trabalha como modelador e coordenador BIM pela Sal.te, desenvolvendo e gerindo modelos de construção virtual em Archicad para entregas executivas e compatibilização BIM. Auxilia escritórios no Rio Grande do Norte (presencial) e de todo o Brasil (remoto) a migrar para o software Archicad e processos BIM.

Ainda tem dúvidas?

Confira outros conteúdos na nossa Comunidade

Continue navegando

Últimas soluções nos nossos fóruns

Perguntas resolvidas