cancel
Showing results for 
Search instead for 
Did you mean: 
cancel
Showing results for 
Search instead for 
Did you mean: 
Libraries & objects
About Archicad and BIMcloud libraries, their management and migration, objects and other library parts, etc.

I need help making my object "smart"

Anonymous
Not applicable
Hi,
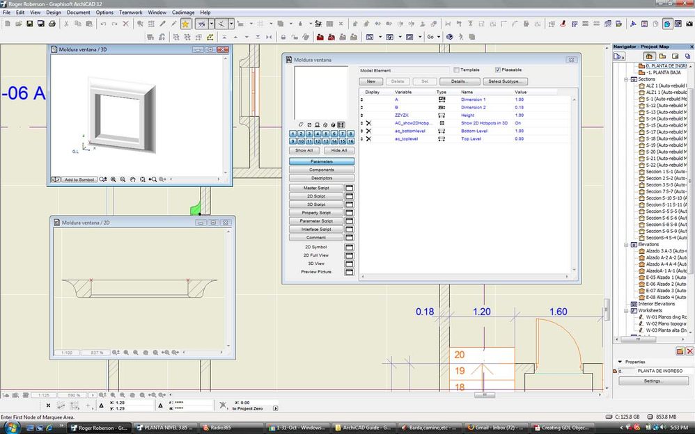
I created a frame to place around windows with a molding made from a complex profile, but once I save it as an object and place my object in the plan, if I give a measurement, it's original measurements of the molding changes and distorts, I know now that I have to make the object "smart" but It's confusing and I don't know how to do this,
Can anybody help me with this please?
Thanks!

1.jpg
7 REPLIES 7
Dwight
Newcomer
I can't make the url work

search Google for "Introduction to object making with Archicad"
there's a downloadable PDF.
Dwight Atkinson
vfrontiers
Advocate
I would suggest that if you want an editable object you use PROFILER (the add-on) instead of complex profiles. Complex profiles add way too much senseless code to the resulting part...

In PROFILER, you have the same profile and will have a SQUARE (polyline) as the PATH. Once you open up the .gsm, you will be able to identify which number relate to the path and which relate to the profile. (use the gdl reference pdf in the help menu of AC for more info)

Simply replace the path nodes with VARIABLES. Most likely you will want the PATH to match the window opening.... so you identify the INSIDE of your profile as the point of extrusion. Then when you type in A & B on your part, they can match the window opening size.

Profiler will builld the object laying down, so you'll also have to include a rotx 90 at the beginning.

It is really easy to do (but seemingly hard to explain).... If you make a module of the PROFILE as a fill (copy the one out of your complex profile) and email it to me, I can whip up...
Duane

Visual Frontiers

AC25 :|: AC26 :|: AC27
:|: Enscape3.4:|:TwinMotion

DellXPS 4.7ghz i7:|: 8gb GPU 1070ti / Alienware M18 Laptop
Anonymous
Not applicable
Hi Duane,

I downloaded the PROFILER add-on, I created the molding, but I'm stuck, I'm new in object creation, I apreciatte all your help.

I need to use my frame exactly as you explained it to me, I need to place this frame around diferent sizes of windows and I need to give the inside measurements of the frame (the size of the window).

I will really apreciate your help,
Thanks,
what email address do you have to send you the module of the profile?, I hope I understood well,
Thanks again!
Thank you also Dwight.
Mario Igartua
vfrontiers
Advocate
Check and see if it's an extra install on the DVD... I can't locate it GOODIES at the website.... I'd send you mine, but it's MAC version.
Duane

Visual Frontiers

AC25 :|: AC26 :|: AC27
:|: Enscape3.4:|:TwinMotion

DellXPS 4.7ghz i7:|: 8gb GPU 1070ti / Alienware M18 Laptop
Anonymous
Not applicable
I looked for the old Profiler also.
Kinda says there is a link there, but when it takes
you to downloads, no link is found.
Anybody with a windows version?
It could be sent to lllbier@gmail.com
if you don't want to post it here.
Or any other info on how to get it would be great.
Since it is no longer on web, I'm sure it would be
a huge waste of time to bug G.S.
Thanks
Bier
ps.
I took a look at dvd and did a "explore" of the 12 dvd, but did not find
any goodies on it.
Did I miss something?
Karl Ottenstein
Moderator Emeritus
For some bizarre reason, Profiler is not listed on the USA Goodies page, but it is listed on the international page.

The international download should work fine with a US installation:
http://www.graphisoft.com/support/archicad/downloads/goodies12/INT.html

Cheers,
Karl
Vote for Wish: Copy/Paste in 3D

AC 29 USA and earlier   •   hardware key   •   macOS Taho 26.1 MacBook Pro M2 Max 12CPU/30GPU cores, 32GB
Anonymous
Not applicable
Thanks Karl
Got it.
Works great.
Bier
p.s.
Thanks Duane
for posting the concept.