cancel
Showing results for 
Search instead for 
Did you mean: 
EN
cancel
Showing results for 
Search instead for 
Did you mean: 
CFS_Mike
Booster

Relative Angle Help

I have a drawing that has weird angles being created (like 89.997 degrees) and I keep having to triple check everything to make sure whatever I draw is precisely 90 degrees or similar. I went into my work environment setting and found tracker and coordinate input. I unchecked the boxes for "Use relative angle measures" and "Use angle relative to the last Snap Reference Line", is this going to stop the slightly off angles from showing up as snap guides? It's really annoying. 


Screenshot 2025-09-04 at 2.34.11 PM.png
3 Replies 3
Barry Kelly
Moderator

I have the same settings with the addition of the last one - expand tracker automatically - not that that will make a difference.

Also check the input constraints and guides to see you have no wired angles in there.

This is from 22 but should be the sane in other versions.

 

BarryKelly_1-1757031897674.png

 

When placing elements, make sure you have the snap guides turned on so you can see where you are going and can snap to those guides and watch the angle in the tracker.

 

BarryKelly_3-1757032295967.png

 

Also SHIFT will constrain mouse direction.

 

And be sure to be using the Orthogonal grid and not the rotated grid.

 

BarryKelly_2-1757032164058.png

 

To be doubly sure, I set my rotated grid to also be orthogonal or something obvious like 45°.

 

Barry.

One of the forum moderators.
Versions 6.5 to 27
i7-10700 @ 2.9Ghz, 32GB ram, GeForce RTX 2060 (6GB), Windows 10
Lenovo Thinkpad - i7-1270P 2.20 GHz, 32GB RAM, Nvidia T550, Windows 11
CFS_Mike
Booster

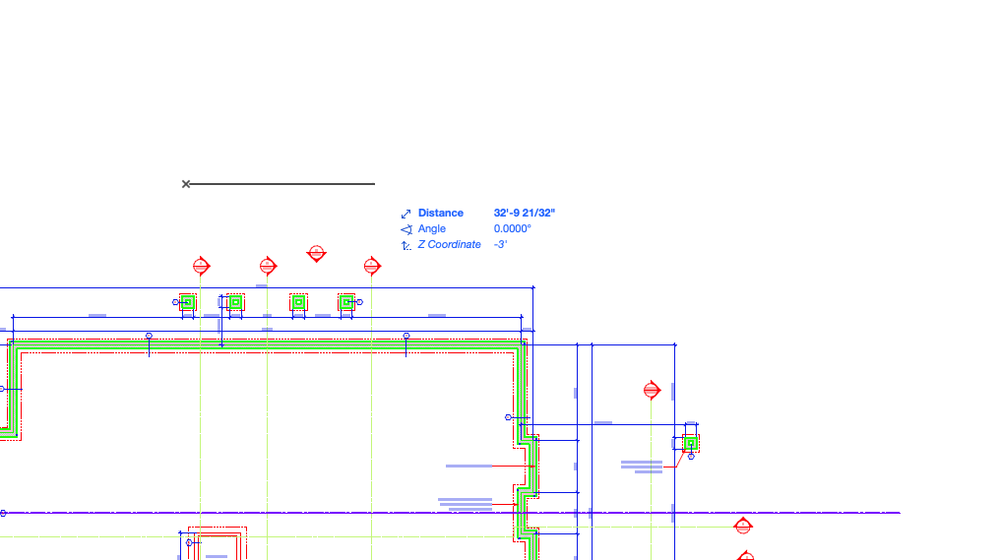
No. I have my tolerances set to 4 decimal places and it's still off by some insane decimal place, like 0.0000001 I can tell because whatever I'm drawing is just a little bit blurry on my screen. I have to draw and then go back, select the item, type in 0.000000 degrees, and then intersect the two items. It is really just unintelligent that Archicad doesn't have a way to reset everything to 0, 90, 180, & 270, not to mention extremely aggravating and time consuming. I wish we used Revit instead. Screenshot 2025-09-17 at 9.42.39 AM.png

Lingwisyer
Guru

The lack of a proper ortho mode has been a long term wish... Here is a wish from after the great purge.

AC22-29 AUS 3200Help Those Help You - Add a Signature
Self-taught, bend it till it breaksCreating a Thread
Win11 | i9 10850K | 64GB | RX6600 Win11 | R5 2600 | 16GB | GTX1660

Still looking?

Browse more topics

Back to forum

See latest solutions

Accepted solutions

Start a new discussion!