abbrechen
Suchergebnisse werden angezeigt für 
Stattdessen suchen nach 
Meintest du: 
abbrechen
Suchergebnisse werden angezeigt für 
Stattdessen suchen nach 
Meintest du: 

Umbau-Filter durch Graphische Überschreibungen erweitern

Anna Gnizdiukh
Graphisoft
Graphisoft

Der Umbau-Filter ist eine der häufigst genutzten Funktionen im Archicad. Damit lassen sich Modell-Elemente graphisch je nach Umbau-Status unterschiedlich darstellen - sowohl in 2D als auch in 3D.

In manchen Fällen sollen bestimmte Elemente von dem Umbau-Filter eingestellten Überschreibungsstil abweichen. Zum Beispiel, Neubau-Innenwände sollen anders als Neubau-Außenwände gezeigt werden oder ein Teil der Bemaßungen soll farbig hervorgehoben werden. 

Wenn Sie die gewünschte Darstellung über die Einstellungsmöglichkeiten im Umbau-Filter nicht erreichen, können Sie zusätzlich zu dem Umbau-Filter eine graphische Überschreibung erstellen. 

 

 

1. Gewünschten Umbau-Filter einstellen

 

Dokumentation > Umbau

Wählen Sie den gewünschten Umbau-Filter.

 

Bildschirmfoto 2024-04-24 um 12.56.07.png

2. Graphische Überschreibung erstellen

 

Dokumentation > Graphische Überschreibung > Graphische Überschreibungen...

Sie können eine neue Überschreibung erstellen mit dem Button Neu, oder eine bestehende Überschreibung ergänzen (die vorhandene Überschreibung auswählen).

Bildschirmfoto 2024-04-24 um 12.49.15.png

Danach in der Überschreibung eine neue Regel erstellen.

Hinweis: graphische Überschreibungsregel werden nach dem Umbau-Filter angewendet, das bedeutet die graphische Überschreibung kann ggf. die durch Umbau-Filter festgelegte Darstellung verändern.

 

Beispiel: Neubau-Bemaßungen grün darstellen

 

Bildschirmfoto 2024-04-24 um 12.50.45.png

Bildschirmfoto 2024-04-24 um 13.06.39.png

Beispiel: Neubau-Außenwände grau darstellen

 

Bildschirmfoto 2024-04-24 um 12.57.32.png

 

Bildschirmfoto 2024-04-24 um 13.07.19.png

 

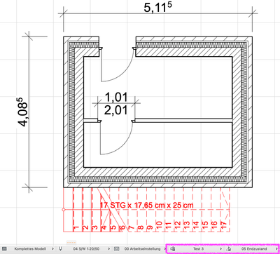
Beispiel: Neubau-Treppe im Endzustand rot darstellen

 

Bildschirmfoto 2024-04-24 um 15.17.36.png

 

Bildschirmfoto 2024-04-24 um 15.18.08.png

Bildschirmfoto 2024-04-24 um 15.18.49.png

 

Hier finden Sie mehr Informationen zu dem Umbau-Filter: 

https://community.graphisoft.com/t5/Dokumentation/Das-Umbau-Werkzeug/ta-p/392220

 

Hier finden Sie mehr Informationen zu den Graphischen Überschreibungen:

https://community.graphisoft.com/t5/Dokumentation/Neue-Eigenschaften-Grafische-%C3%9Cberschreibung/t...

Didn't find the answer?

Check other topics in this Forum

Back to Forum

Read the latest accepted solutions!

Accepted Solutions

Start a new conversation!