abbrechen
Suchergebnisse werden angezeigt für 
Stattdessen suchen nach 
Meintest du: 
DE
abbrechen
Suchergebnisse werden angezeigt für 
Stattdessen suchen nach 
Meintest du: 
arplan
Booster

BimX fehlerhafte Darstellung

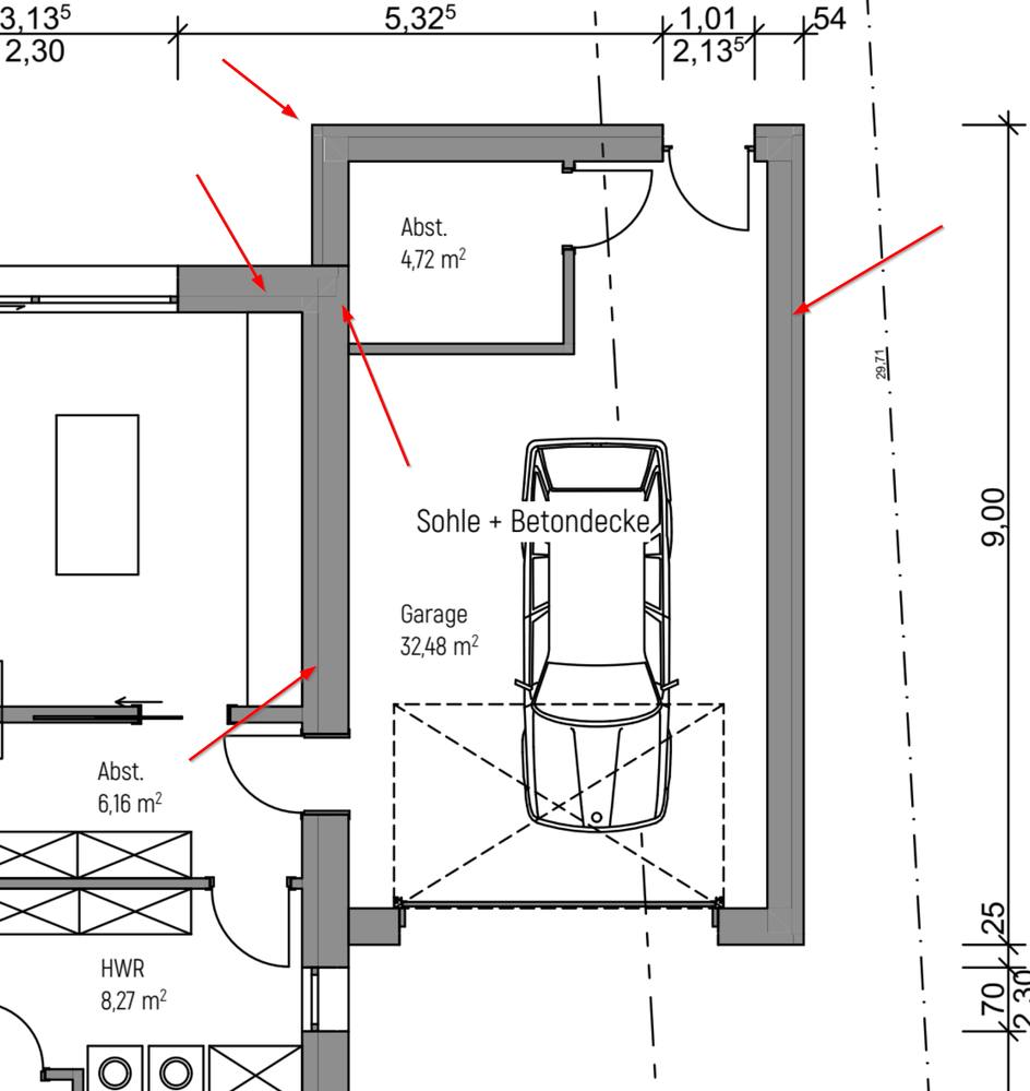
hi, 

die Wände werden komisch dargestellt.
Wer kann mir dabei helfen?


Fehlerhafte Darstellung.pngsste nicht, wie ich das beheben kann. 

2 ANTWORTEN 2
arplan
Booster

Wie sieht es jetzt aus? Ist das normal?

bmatt
Advisor

Was hast du aus AC in BIMx hochgeladen (Layout oder hast ein Grundriss direkt ins Set gezogen? Sieht fast so aus..,), wie hast du die Darstellung in AC gesteuert (GÜ, Modelldarstellungsoptionen…?) und woher (aus Projektmappe, Arbeitsmappe?)? Ich mag es ja auch gern kurz und bündig; aber ein bissl Info braucht’s scho. Reinzeichnung aktiv? In AC Darstellung wie du dir das vorstellst?

Archicad 28 Full GER | MacOS 26 Tahoe

Keine Antwort gefunden?

Andere Beiträge
im Board ansehen

Zurück zum Board

Neueste Lösungen durchsuchen

Akzeptierte Lösungen zeigen

Eine neue Diskussion starten!

Neues Thema erstellen