abbrechen
Suchergebnisse werden angezeigt für 
Stattdessen suchen nach 
Meintest du: 
abbrechen
Suchergebnisse werden angezeigt für 
Stattdessen suchen nach 
Meintest du: 

Geänderte Referenz der Einbauhöhe – Situation korrigieren

Sarah LF
Graphisoft
Graphisoft
SarahLF_0-1721735501637.jpeg

 

Es ist tägliche Planungspraxis, dass die Einbauhöhe eines oder mehrerer Objekte von der Einbauhöhe einer Referenz (z. B. einer Rasterdecke) abhängt. Eine neue DDS-CAD-Kontrollfunktion erleichtert Ihnen die Überprüfung des Modells in den Fällen, in denen an einer solchen Referenz eine Änderung der Montagehöhe vorgenommen wird. Zudem ermöglicht die Funktion zwei Korrekturmaßnahmen, die nach einer solchen Änderung verwendet werden können:

  1. Änderung des Soll-Abstandswerts der abhängigen Objekte zur Referenz; und zwar auf den Wert, der sich durch die Änderung ergeben hat (=> Korrektur der Abstandswert-Angabe zwischen abhängigen Objekten und ihrer Referenz)
  2. Anpassung der Montagehöhe der Objekte gemäß dem zuvor gültigen Abstandswert (=> Korrektur des Abstands selbst bei beibehaltenem Abstandswert zwischen Objekten und Referenz)

Zur Verdeutlichung dieser Optionen erläutert dieser Techniktelegramm-Beitrag die Einzelheiten dieser Funktion.


Voraussetzungen

Das Gebäudemodell muss erfasst und Objekte mit eingetragener Referenz (z. B. Rasterdecke) müssen platziert sein.

SarahLF_1-1721735501518.jpeg

 

 


Ausgangssituation

In diesem Beispiel wurden die Gewerke Elektrotechnik und Lüftung geplant. Im Bereich der Elektrotechnik wurden Einbauleuchten und Brandmeldeanlagen-Objekte mit Bezug zur Referenz 'Abgehängte Decke' abgesetzt. Im Gewerk Lüftung sind Luftanschlusskästen geplant. Auch hier ist die Referenz die 'Abgehängte Decke'.

Die Montagehöhe der Rasterdecke beträgt 2,7 m.

SarahLF_2-1721735501490.jpeg

 


Änderung der Referenz

Nun wird die Montagehöhe der Rasterdecke von 2,7 m auf 2,4 m geändert. Hierbei wird die Rasterdecke im Modell angepasst, jedoch werden Objekte, für welche die Rasterdecke als Referenz dient, nicht auf die neue Montagehöhe verschoben.

SarahLF_3-1721735501400.jpeg

 


Situation korrigieren

Um diese Situation zu korrigieren, wird nun eine Anpassung einzeln in den jeweiligen Gewerken vorgenommen.

Im Gewerk Elektrotechnik gehen Sie wie folgt vor, um die Korrektur einzuleiten:

  • Wählen Sie in der Menüleiste 'Extras'. Eine Auswahl erscheint.
  • Klicken Sie auf 'Modell analysieren'. Die Auswahl wird erweitert.
  • Aktivieren Sie 'Modell auf Plausibilität prüfen'. Es öffnet sich der Dialog 'Modell auf Plausibilität prüfen'.
  • Wechseln Sie in die Registerkarte 'Modell prüfen'.
  • Aktivieren Sie 'Geänderte Referenz für Montagehöhe' durch Setzen eines Häkchens.
  • Bestätigen Sie Ihre Auswahl mit 'OK'. Es schließt sich der Dialog 'Modell auf Plausibilität prüfen', das Modell wird geprüft und die Ergebnisse werden in der Meldungsliste angezeigt.
SarahLF_4-1721735501420.jpeg

 

Die daraufhin angezeigte Meldungsliste zeigt das Ergebnis der Prüfung. Ihre Liste kann – je nach geplanter Situation – von der folgenden Beispieldarstellung abweichen:

SarahLF_5-1721735501532.jpeg

 

Um die Objekte wieder in der gewünschten Montagehöhe zu platzieren, gehen Sie wie folgt vor:

  • Markieren Sie einen Eintrag in der Liste. Der Eintrag wird blau hervorgehoben.
  • Um alle Einträge auszuwählen, drücken Sie, wenn gewünscht, [Strg] + [A]. Alle Einträge in der Liste werden markiert.
  • Führen Sie einen Rechtsklick auf den/einen markierten Eintrag aus. Es öffnet sich das Kontextmenü.
  • Wählen Sie 'Situation korrigieren'. Die Auswahl im Kontextmenü wird erweitert.
SarahLF_6-1721735501408.jpeg

 

Für die Korrektur stehen Ihnen die beiden folgenden Möglichkeiten zur Verfügung:

SarahLF_7-1721735501434.jpeg

 

Bei der Auswahl 'Definierten Abstand entsprechend der Referenz aktualisieren' wird die aktuelle Montagehöhe der Objekte nicht geändert. Stattdessen wird in den Eigenschaften des jeweiligen Objekts der Abstandswert zur Referenz gemäß der neu gegebenen Situation geändert.

Was dies genau bedeutet, verdeutlicht das folgende Beispiel:

Die Brandmeldeanlagen-Objekte wiesen vor der Änderung der Rasterdeckenhöhe eine Montagehöhe von 0 m zur Referenz 'Abgehängte Decke' auf.

SarahLF_8-1721735501505.jpeg

 

Nach der Modellprüfung wird in den Eigenschaften der Objekte der Abstand in roter Schriftfarbe angezeigt. Zudem wird ein erläuternder Hinweis angezeigt, sobald der Cursor an den entsprechenden Wert bewegt wird.

SarahLF_9-1721735501523.jpeg

 

Falls Sie sich zuvor dafür entschieden haben, die Situation durch die Auswahl 'Definierten Abstand entsprechend der Referenz aktualisieren' zu korrigieren, wird der Abstand zur Referenz von 0 m auf 0.3 m geändert.

SarahLF_10-1721735501543.jpeg

 

Haben Sie jedoch zuvor die Auswahl 'Objekt entsprechend der Referenz auf den definierten Abstand verschieben' getroffen, werden die Objekte verschoben und zwar so, dass Sie den definierten Abstand wieder einhalten, der in den Objekteigenschaften angegeben ist. In der Ansicht in diesem Beispiel werden die Objekte folglich wieder auf Höhe der Referenz platziert, da der Abstand 0 m definiert war. Ihre Ansicht kann – je nach geplanter Situation – von der folgenden Beispieldarstellung abweichen:

SarahLF_11-1721735501560.jpeg

 

Im Gewerk Lüftung sollen die Objekte ebenfalls verschoben werden. Nach der Korrektur sollen sie dieselbe Höhe wie die Rasterdecke aufweisen.

SarahLF_12-1721735501596.jpeg

 

Um die Funktion 'Modell auf Plausibilität prüfen' aufzurufen, gehen Sie so vor wie zuvor für das Gewerk Elektrotechnik beschrieben. Der Aufbau des aufgerufenen Dialogs orientiert sich am aktuellen Gewerk und unterscheidet sich daher von dem des Gewerks Elektrotechnik:

SarahLF_13-1721735501622.jpeg

 

Wählen Sie hier nun die Korrekturoption 'Objekt entsprechend der Referenz auf den definierten Abstand verschieben', werden die Lüftungsobjekte verschoben. Sie weisen nach der Korrektur dieselbe Höhe auf wie die Referenz 'Abgehängte Decke'.

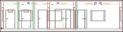
In unserem Beispiel erhalten wir somit die folgende Ansicht:

SarahLF_14-1721735501594.jpeg

 

Der Beitrag bezieht sich auf die DDScad Version 16 und wurde im März 2021 veröffentlicht.

Didn't find the answer?

Check other topics in this Forum

Back to Forum

Read the latest accepted solutions!

Accepted Solutions

Start a new conversation!