abbrechen
Suchergebnisse werden angezeigt für 
Stattdessen suchen nach 
Meintest du: 
abbrechen
Suchergebnisse werden angezeigt für 
Stattdessen suchen nach 
Meintest du: 
Dokumentation
Archicads Dokumentationswerkzeuge, Ansichten, Modellfilterung, Layouts, Veröffentlichung, etc.

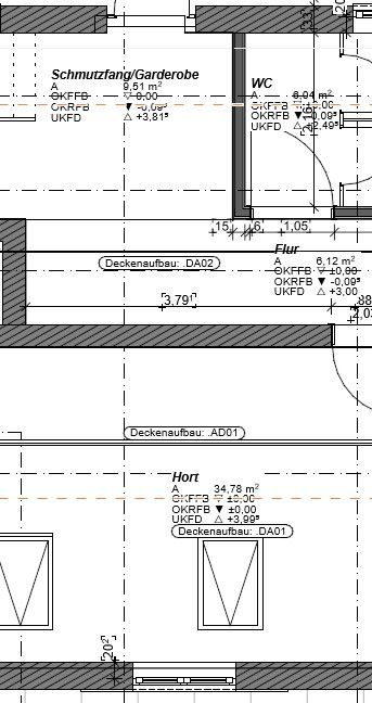
Deckschraffur eines Daches im Deckenspiegel

Rafael arc
Booster

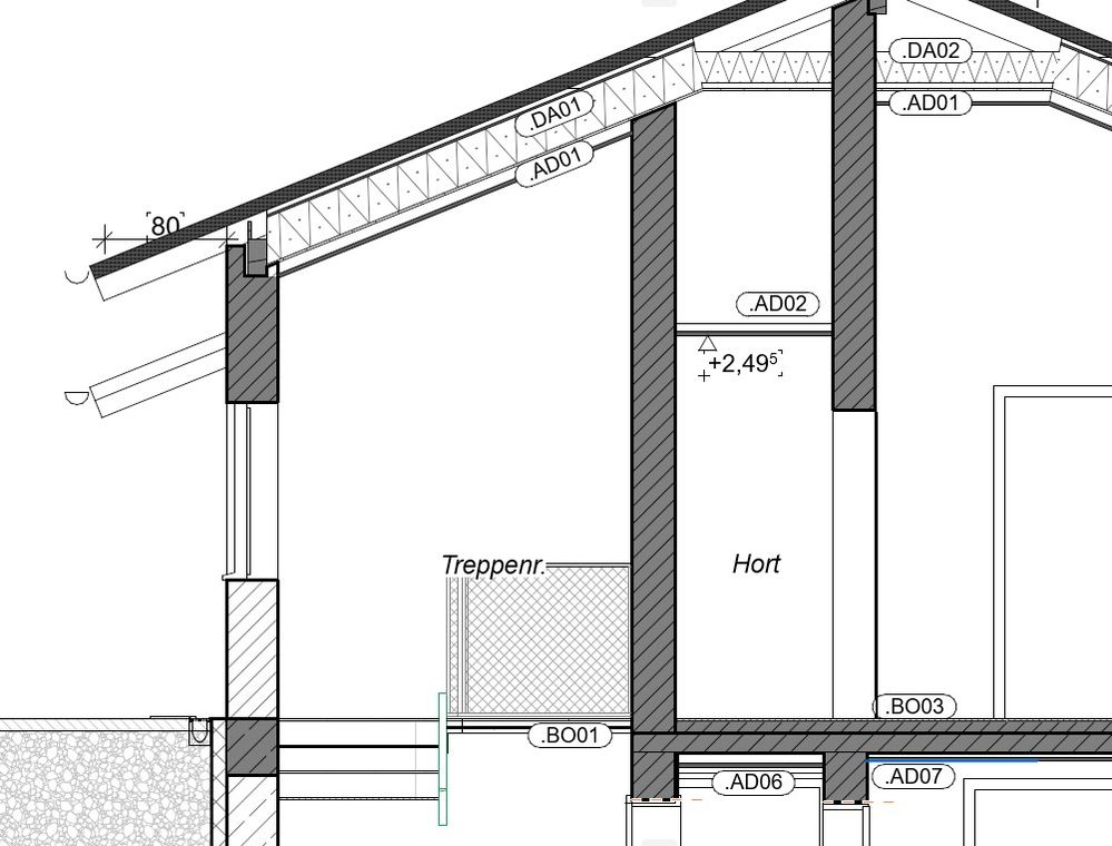
Servus zusammen,

ich wollte gerade einen Deckenspiegel erstellen und wollte mittels Überschreibung die Oberflächen der Deckenarten farblich darstellen (codieren).

Im unteren Geschoss habe ich die Abhangdecken mit dem Deckenwerkzeug erstellt und die Überschreibung funkioniert einwandfrei.

Im oberen Geschoss haben wir Dachschrägen und habe die schrägen Abhangdecken mit dem Dachwerkzeug erstellt. Nun habe ich festgellt, dass die Dächer/ Abhangdecken von unten gesehen keine Oberflächenschraffur (also die Untersicht hat keine Oberfläche und somit auch nicht überschrieben werden können. 

Kann mir das jemand bestätigen oder bin ich nur zu doof.

Sobald ich das Dach unter die horizontale Schnittlinie schiebe greift die Überschreibung der Schraffur.

Gruß Rafael

 





gr_oberes geschoss.jpggr_unteres geschoss.jpgschnitt.jpg
4 ANTWORTEN 4
Stefan L_
Rockstar

Vielleicht kommst Du mit der Grundrissdarstellung "Nur Aufsicht" über die Runden?

StefanL__0-1763985292038.png

 

--
Stefan
AC ...-29, WIN11
snow
Moderator

Mit der Einstellung für das Dach gibt es halt dann immer und nur noch Aufsicht... wobei man im Falle einer reinen Bekleidung wahrscheinlich gut damit leben lkann..

 

Die andere Sache wäre eben, in den Grundriss-Schnittebenen-Einstellung den Sichtbereich entsprechend weit hoch zu setzen...

Ich bin nicht dazu gekommen, das auszuprobieren, heute...  aber wenn sich das so verhält

 


@ Rafael arc  schrieb:

… Sobald ich das Dach unter die horizontale Schnittlinie schiebe greift die Überschreibung der Schraffur.

 



Archicad For Future F R E E D O M for-COLORS
______________________________________

archicad versions 8-29 | mac os 13 | win 11

Ich werde das dann wohl mit der Aufsicht lösen. 

Die Grundriss-Schnittebenen-Einstellung entsprechend hoch zu setzten bringt leider auch nicht das gewünschte Ergbniss. 

Danke!!!

Ich schrieb davon, die Begrenzung für den Sichtbereich entsprechend hoch einzustellen...
Das brächte aber tatsächlich auch nichts - hab' ich gemnerkt - weil es für Dächer eben keine "Flächen-Darstellung" für die Untersicht gibt.

 

Die Grundriss-Schnittebene auf oberhalb des Daches zu stellen bräüchte, mit 'projizierter Darstellung' auch die Ansicht zustande... dann wird aber vermutlich die Darstellung der restlichen Elemente nicht mehr passen.

 

Von dem her, ja, Fix-einstellung 'Aufsicht`' ist hier die Lösung, würde ich nun auch sagen. 😀

Archicad For Future F R E E D O M for-COLORS
______________________________________

archicad versions 8-29 | mac os 13 | win 11