cancelar
Mostrando resultados para 
Pesquisar então 
Você quer dizer: 
cancelar
Mostrando resultados para 
Pesquisar então 
Você quer dizer: 
Documentação
Informações sobre as ferramentas de documentação do Archicad, Vistas, Filtros de Vista, Leiautes e publicação.
SOLUCIONADO!

Detalhamento

Herlen
Impulsionador(a)

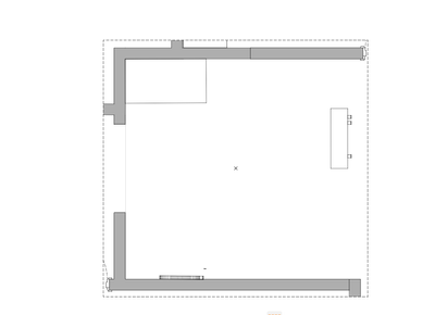
Olá, quando estou fazendo um detalhamento para a ampliação de um ambiente, ele tá ficando dessa maneira:

Alguém poderia ajudar?

cfasfafea.png

 como tá ficando:

sacascfascf.png

1 SOLUÇÃO ACEITA

Soluções aceitas
Solução
Patricia Angelim
Especialista

Oi, @Herlen ! Tudo bem?

 

quando você abre o seu detalhe, você está abrindo ele diretamente de uma vista (onde os nomes ficam azul) ou está abrindo pelo mapa de projeto (onde os nomes são pretos)?

se estiver abrindo pelo mapa de vista (nomes azuis), o que está acontecendo é que os filtros aplicados na sua vista (vegetal, renovação, sobreposição gráfica…) não estão de acordo com a planta que você está puxando o detalhe, portanto precisa ajustar as suas definições de vista para a visualização para os filtros adequados.

 

Vejo, inclusive, que sua planta está na combinação de vegetais “personalizada”. Evite trabalhar com os filtros no “personalizado”, justamente porque não temos controle sobre os filtros aplicados e dessa forma nosso arquivo fica bagunçado.

 

Te dou a dica de não fazer a ampliação de um ambiente inteiro com a ferramenta detalhe, pois dessa forma você perde todas as questões de informações paramétricas que seriam possíveis de extrair do seu modelo, além de tudo se transformar em linhas e tramas. Busque fazer uma nova combinação de vegetais com um vegetal específico para a documentação das suas ampliações e salve uma vista para a ampliação de seus ambientes com os filtros adequados para gerar uma documentação mais inteligente, prática e produtiva, tirando, assim, mais proveito do Archicad.

 

Use a ferramenta detalhe voltada para, de fato, ampliar algum detalhe construtivo no seu modelo, assim você terá mais agilidade em todo o processo

Exibir solução no post original

1 RESPONDER 1
Solução
Patricia Angelim
Especialista

Oi, @Herlen ! Tudo bem?

 

quando você abre o seu detalhe, você está abrindo ele diretamente de uma vista (onde os nomes ficam azul) ou está abrindo pelo mapa de projeto (onde os nomes são pretos)?

se estiver abrindo pelo mapa de vista (nomes azuis), o que está acontecendo é que os filtros aplicados na sua vista (vegetal, renovação, sobreposição gráfica…) não estão de acordo com a planta que você está puxando o detalhe, portanto precisa ajustar as suas definições de vista para a visualização para os filtros adequados.

 

Vejo, inclusive, que sua planta está na combinação de vegetais “personalizada”. Evite trabalhar com os filtros no “personalizado”, justamente porque não temos controle sobre os filtros aplicados e dessa forma nosso arquivo fica bagunçado.

 

Te dou a dica de não fazer a ampliação de um ambiente inteiro com a ferramenta detalhe, pois dessa forma você perde todas as questões de informações paramétricas que seriam possíveis de extrair do seu modelo, além de tudo se transformar em linhas e tramas. Busque fazer uma nova combinação de vegetais com um vegetal específico para a documentação das suas ampliações e salve uma vista para a ampliação de seus ambientes com os filtros adequados para gerar uma documentação mais inteligente, prática e produtiva, tirando, assim, mais proveito do Archicad.

 

Use a ferramenta detalhe voltada para, de fato, ampliar algum detalhe construtivo no seu modelo, assim você terá mais agilidade em todo o processo