abbrechen
Suchergebnisse werden angezeigt für 
Stattdessen suchen nach 
Meintest du: 
abbrechen
Suchergebnisse werden angezeigt für 
Stattdessen suchen nach 
Meintest du: 
Projektdaten & BIM
BIM-basierte Verwaltung von Attributen, Zeitplänen, Vorlagen, Favoriten, Hotlinks, Projekten im Allgemeinen, Qualitätssicherung, usw.

Original und Hotlink unterscheiden sich

Intuos
Enthusiast

Hallo alle zusammen,

wir sind gerade auf ein faszinierendes Problem gestoßen.

 

Wir haben ein Projekt mit mehreren Häusern (die jeweils in eine eigene Datei bearbeitet werden) auf dem Grundstück welche durch eine Garage verbunden sind.

In einer Gesamtdatei verlinken wie die Einzeldateien und modellieren dort die Tiefgarage.

Nun hat der Kollege da festgestellt das in einem Haus im UG die Wände gespiegelt dargestellt werden obwohl in der Originaldatei die Wände richtig sind.

 

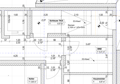
Einzeldatei:

image1.png

 

Gesamt:

image002.png

Wie kann das passieren?

Alle Hotlinks sind aktualisiert und auf dem neuesten Stand.

 

Vielen Dank im Voraus.

 

EDIT: Haben bereits versucht den Hotlink zu löschen und neu reinzuladen und leider keine Verbesserung.

 

EDIT 2: Weitere Bilder hinzugefügt.

 

 

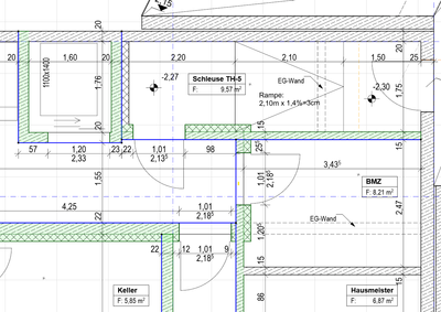
Einzeldatei:

image3.png

 

 Gesamtdatei:

image4.png

Operating system used: Windows

5 ANTWORTEN 5
poeik
Rockstar

Ich habe zwar kaum Erfahrung mit Moduldateien. Aber ich vermute, dass der mehrschichtige Wandaufbau in der Moduldatei geändert wurde und sich in der Zieldatei nicht automatisch ändert. Exportiere die Meshrschichtwand aus dem Modul mit dem Attributmanager und importiere sie in die Zieldatei. Achte darauf, dass sich die Indexzahl nicht ändert

 

poeik_0-1733491704179.png

 

Gruss, poeik

ArchiCAD CHE 5 - 28 - Windows 11

Hi Poeik,

danke für die Antwort. Wie sorge ich dafür dass sich die indexzahl nicht ändert? Weil aus der Moduldatei kommt die Wand mit 65 aber in der Zieldatei hat schon eine andere Wand die Nummer.

Bernhard Binder
Graphisoft Partner
Graphisoft Partner

Zur Funktionsweise: Archicad schaut immer beim Hinzufügen eines Hotlinks (und auch beim Kopieren von einer anderen Datei) ob der Name des Attributes schon vorhanden ist. Wenn ja, dann wird dieses Attribut verwendet und intern die verwendeten IDs geändert. Wenn der Name nicht vorhanden ist, dann wird ein Attribut angelegt. Sollte die verwendete ID frei sein, so wird dieselbe ID verwendet. Wenn die ID nicht frei ist, so wird die erste verfügbare verwendet. 

So lässt sich sehr leicht ein Chaos in den Attributen erzeugen. Was jetzt noch dazu kommt ist der Umstand, dass Archicad Attributsänderungen von Hotlinks nicht in die Hauptdatei übernimmt. Du musst alseo selbst über den Attributsmanager diese Änderungen durchführen.

Wenn du sehr sauber mit IDs gearbeitet hast, dann ist das gut, weil du dann die Attribute über die ID ersetzen kannst. Wenn du sehr sauber über Namen gearbeitet hast, dann kannst du es über Namen ersetzen. wenn du an irgndeiner Stelle mal den Namen geändert hast und die IDs nicht gleich sind, dann musst du händisch Ordnung in die Attribute bringen. Dafür gibt es jetzt kein ordentliche Grundregel, aber mit löschen von Attributen und ersetzen kriegt man es auf jeden Fall wieder in den Griff.

AC4.5-AC29 AUT, GER, INT www.a-null.com

Wer tiefer in die komplexe Abhängikkeiten der ArchiCAD Hotlink / Attribut Thematik einsteigen will dem kann ich folgendes (englische) Video empfehlen:  The dark side of Attribute Chaos in Archicad with Scott J Moore

 

Aktuell wäre es aus Sicht des konsistenten Attribute Managements sinnvoll, alles in einer Hauptdatei zu verwalten und zu modellieren.
Graphisoft hat das Thema auf der Roadmap, aber wohl nicht zeitnah.

AC 6,5 - 28 | GER WIN | i7-9700K | RTX 3070 | 64GB

@karsten_bauschert  schrieb:

Attribute Management...
Graphisoft hat das Thema auf der Roadmap, aber wohl nicht zeitnah.


Ulkig - habe mich gerade im INT-Forum über diese Meldung erschrocken:

https://community.graphisoft.com/t5/General-discussions/Central-Attribute-management-Roadmap/m-p/639...

😣

--
Stefan
AC ...-29, WIN10

Systemdetails des Autors dieser Nachricht