abbrechen
Suchergebnisse werden angezeigt für 
Stattdessen suchen nach 
Meintest du: 
abbrechen
Suchergebnisse werden angezeigt für 
Stattdessen suchen nach 
Meintest du: 
Aktuell gibt es eine globale Störung bei Microsoft Azure wodurch einige unserer Dienste direkt betroffen und nicht funktionsfähig sind. Unser Team überwacht die Situation aktiv und arbeitet daran, die Auswirkungen zu minimieren. Vielen Dank für Ihre Geduld und Ihr Verständnis.
Dokumentation
Archicads Dokumentationswerkzeuge, Ansichten, Modellfilterung, Layouts, Veröffentlichung, etc.
GELÖST!

Wände und Linien nach kopieren grau

Balunight
Participant

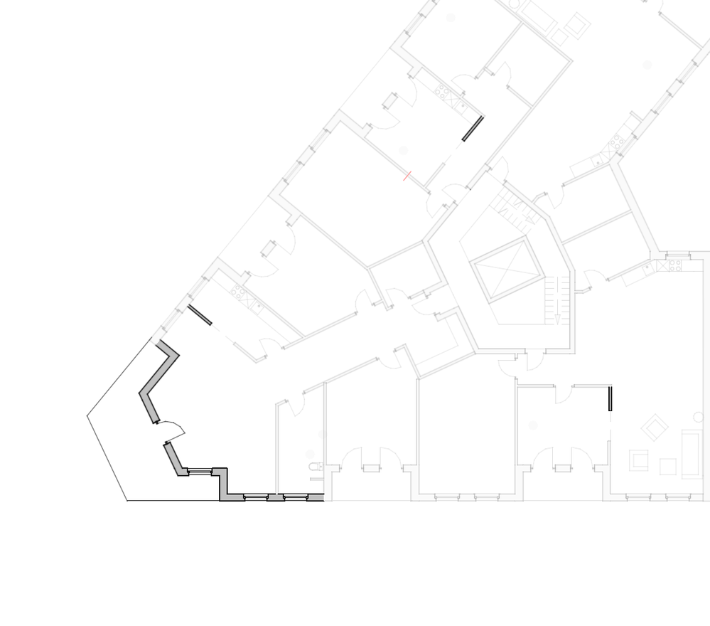
Hallo, ich bin jetzt schon eine ganze Weile am feststecken. Leider haben sich nach dem Kopieren von einer anderen Datei, manche Wände grau Transparent verfärbt. Eigenschaften übergeben von den "normalen" Wänden funktioniert leider nicht. Wenn ich allerdings die Wandparameter mit alt aufnehme und eine neue Wand damit ziehe, sieht diese vollkommen normal aus. Jemand eine Idee was da schiefgelaufen ist?

 

Viele Grüße.

 

Verwendetes Betriebssystem: Windows


Screenshot 2025-01-11 180528.pngScreenshot 2025-01-11 180542.png
1 AKZEPTIERTE LÖSUNG

Akzeptierte Lösungen
Lösung
runxel
Hero

Hi Balunight, willkommen im Forum!

Das schaut mir sehr danach aus, als wenn du mit verschiedenen Design Optionen arbeitest und den Haken bei "Passive Elemente einfärben" drinne hast:

runxel_0-1736699834695.png

 

Bitte lege doch eine Signatur an, sodass wir wissen, mit welcher Archicadversion du arbeitest.

Lucas Becker | AC 29 on Mac (Sequoia) | Graphisoft Insider Panelist | Akroter.io – high-end GDL objects | Author of Runxel's Archicad Wiki | Editor at SelfGDL | Developer of the GDL plugin for Sublime Text

My List of AC shortcomings & bugs | I Will Piledrive You If You Mention AI Again |

POSIWID – The Purpose Of a System Is What It Does /// «Furthermore, I consider that Carth... yearly releases must be destroyed»

Lösung in ursprünglichem Beitrag anzeigen

1 ANTWORT 1
Lösung
runxel
Hero

Hi Balunight, willkommen im Forum!

Das schaut mir sehr danach aus, als wenn du mit verschiedenen Design Optionen arbeitest und den Haken bei "Passive Elemente einfärben" drinne hast:

runxel_0-1736699834695.png

 

Bitte lege doch eine Signatur an, sodass wir wissen, mit welcher Archicadversion du arbeitest.

Lucas Becker | AC 29 on Mac (Sequoia) | Graphisoft Insider Panelist | Akroter.io – high-end GDL objects | Author of Runxel's Archicad Wiki | Editor at SelfGDL | Developer of the GDL plugin for Sublime Text

My List of AC shortcomings & bugs | I Will Piledrive You If You Mention AI Again |

POSIWID – The Purpose Of a System Is What It Does /// «Furthermore, I consider that Carth... yearly releases must be destroyed»

Systemdetails des Autors dieser Nachricht