abbrechen
Suchergebnisse werden angezeigt für 
Stattdessen suchen nach 
Meintest du: 
abbrechen
Suchergebnisse werden angezeigt für 
Stattdessen suchen nach 
Meintest du: 

Spezielle Auswahlbefehle in Archicad

CWagner
Graphisoft
Graphisoft

Archicad bietet eine Vielzahl an praktischen Auswahlmöglichkeiten an:

 

 

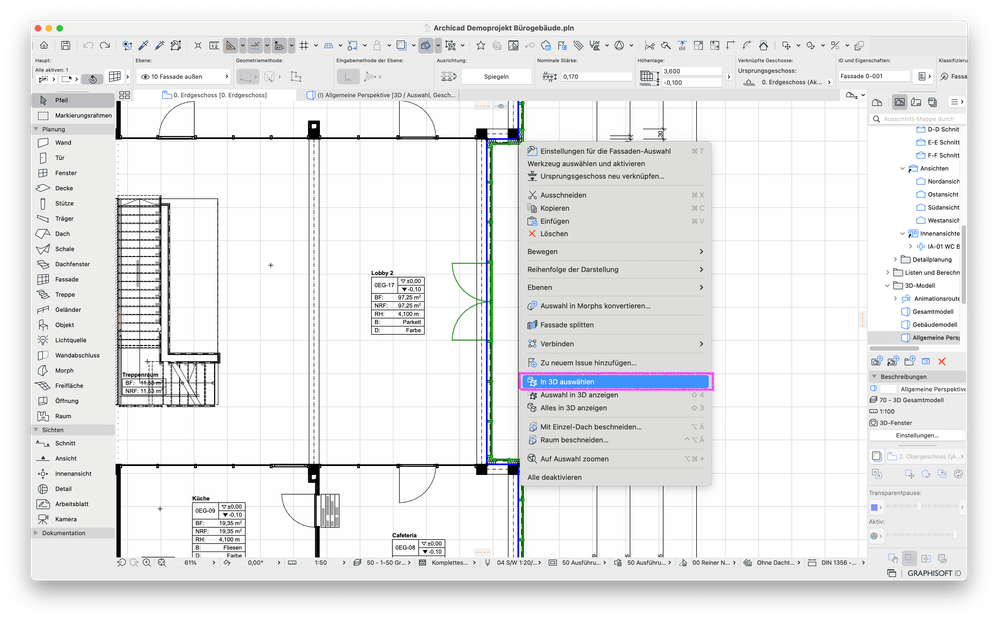
In 3D auswählen

 

Wenn Elemente im Grundriss oder Schnitten über den Kontextmenü-Befehl In 3D auswählen ausgewählt werden, dann wird im 3D auf die ausgewählten Elemente gezoomt. 

 

CWagner_1-1741690336221.png
CWagner_0-1741690304962.png

 

Auswahl ausblenden

 

Mit dem Kontextmenübefehl Auswahl ausblenden können aktivierte Elemente im 3D-Fenster ausgeblendet werden.

 

CWagner_1-1741690504798.png CWagner_2-1741690515219.png

 

Auswahl anzeigen

 

Mit dem Kontextmenübefehl Auswahl anzeigen oder durch das Tastaturkürzel Umschalt+4 können im 3D-Fenster nur die Elemente angezeigt werden, die sich in der aktuellen Auswahl befinden.

 

CWagner_3-1741690602569.png CWagner_4-1741690615964.png

 

Auswahl im 3D anzeigen

 

Elemente die im Grundriss oder Schnitten ausgewählt werden, können als einzige Elemente im 3D über den Befehl Auswahl im 3D anzeigen oder mit den Tastaturkürzel Umschalt+4 dargestellt werden.

 

CWagner_7-1741690852740.png CWagner_8-1741690877025.png

 

Markierungsrahmen im 3D anzeigen

 

Wenn im Grundriss ein Markierungsrahmen aufgespannt wird, kann nur der Inhalt des Markierungsrahmen über den Kontextmenü-Befehl Markierungsrahmen in 3D anzeigen oder den Tastaturkürzel Umschalt+4 dargestellt werden.

 

CWagner_3-1741691125881.png CWagner_2-1741691097098.png

 

Wenn ein dicker Markierungsrahmen ausgewählt ist, dann werden alle Geschosse dargestellt. Wird jedoch ein dünner Markierungsrahmen ausgewählt, wird nur das aktuelle Geschoss des aktiven Grundrisses dargestellt.

 

CWagner_0-1741691036901.png CWagner_1-1741691063310.png

 

Alle anzeigen

 

Wenn statt der gefilterten Auswahl wieder das gesamte 3D-Modell dargestellt werden soll, kann der Kontextmenü-Befehl Alle anzeigen verwendet werden. Es kann auch, wenn keine Elemente ausgewählt sind, mit dem Tastaturkürzel Umschalt+3 alle Elemente wieder eingeblendet werden.

 

CWagner_5-1741690728088.png CWagner_6-1741690736604.png

 

Im Grundriss auswählen

 

Elemente die im 3D oder im Schnitt ausgewählt sind, können über den Befehl Im Grundriss auswählen im Kontextmenü im Grundriss ausgewählt werden. Es wird dabei gleichzeitig auf die Auswahl gezoomt.

 

CWagner_5-1741691252963.png CWagner_4-1741691219966.png

 

Nur Grundrissauswahl auflisten

 

Wenn in Auswertung nur bestimmte Elemente kurzfristig dargestellt werden sollen, dann kann im Navigator über das Kontextmenü der Befehl Nur Grundrissauswahl auflisten genutzt werden, um die Auswertung auf die im Grundriss ausgewählten Elemente temporär zu begrenzen.

 

CWagner_6-1741691413799.png CWagner_7-1741691436469.png

 

Aus Auswertung im Grundriss oder 3D auswählen

 

Wenn in der Auswertung in ein Feld des aufgelisteten Elements geklickt wird, kann über die Schaltfläche Im Grundriss auswählen dieses Element direkt im Grundriss ausgewählt und angezeigt werden.

 

CWagner_0-1741781408917.png CWagner_1-1741781441389.png

 

Wenn die Schaltfläche In 3D auswählen betätigt wird, wird das Element im 3D ausgewählt und angezeigt.

 

CWagner_2-1741781488509.png CWagner_3-1741781499467.png

 

Marker im Ursprungsgeschoss auswählen und darauf zoomen

 

Schnitt-, Ansicht-, Innenansicht-, Detail- und Arbeitsblatt-Marker können im Navigator über den Befehl Marker im Ursprungsgeschoss auswählen und darauf zoomen schnell im Projekt gefunden und ausgewählt werden.

 

CWagner_0-1741691628333.png CWagner_1-1741691650663.png

 

Auf Auswahl zoomen

 

Elemente die ausgewählt sind, aber nicht im gezoomten Bereich sichtbar sind, z. B. da diese über Suchen&Aktivieren ausgewählt wurden und sich weit vom Projektursprung befinden, können über das Kontextmenü oder über Ansicht > Zoom mit dem Befehl Auf Auswahl zoomen direkt gefunden werden. Alternativ kann der Tastaturbefehl Strg+Umschalt++ bzw. cmd+optionen++ verwendet werden.

 

CWagner_2-1741691839406.png CWagner_3-1741691885930.png

 

Auswahl durch Werkzeug begrenzen

 

Wenn ein Werkzeug im Werkzeugkasten vorausgewählt wird und anschließend das Tastenkürzel Strg+A bzw. cmd+A betätigt wird, dann werden nur die sichtbaren platzierten Elemente des Werkzeugs aktiviert. 

 

CWagner_0-1741708538473.png CWagner_1-1741708548325.png

 

Hinweis: 

Die Auswahl kann auch durch den Markierungsrahmen begrenzt werden. Weitere Informationen hierzu können im Artikel Auswahl innerhalb/außerhalb des Markierungsrahmens gefunden werden.

Didn't find the answer?

Check other topics in this Forum

Back to Forum

Read the latest accepted solutions!

Accepted Solutions

Start a new conversation!