cancel
Showing results for 
Search instead for 
Did you mean: 
cancel
Showing results for 
Search instead for 
Did you mean: 
Modeling
About Archicad's design tools, element connections, modeling concepts, etc.

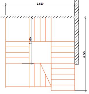
Stair labyrinth.. Escher's Relativity.. Well not quite!

muzedesigns
Participant
Hello!

Does anyone have any suggestions for the best way to 'build' these stairs..

I manage to get to the third platform - but then gut stuck as I can't 'add' another flight.. but rather have to add an additional straight run but then struggle with the hand rails..

Speaking of which - is there anyway to make the handrails visible in the plan view - a way to activate their visibility in the 2D View?

Thanks for your time!

Stair.jpg
Chrissy Avramidis
|| ArchiCAD Versions 7-22 ||
|| 27inch iMac Pro (2017) | macOS High Sierra 10.13.6 | Processor 3 GHz Xeon W | Memory 64GB 2666 MHz DDR4 | Graphics Radeon Pro Vega 64 16368 MB||
7 REPLIES 7
Anonymous
Not applicable
i've found the easiest way to deal with this type of complex stair is to break it down into simple components;

i would probably approach this by using slabs to model the landings and have each flight a separate object (although where you can set up flights to be identical, duplicate the flight).

as far as handrails/balustrades, depending on the proposed type and level of detail required, use angled beam tool, roof tool, trussmaker etc., to obtain the required structure/appearance. the main difficulty i've found is continuous handrails - although only a problem for curved or spiral stairs - sections of straight handrails are generally easy to join if required.
Chazz
Enthusiast
Cadimage StairBuilder could easily do these stairs as a single object or multiple objects. As has been pointed out eleswhere in this forum, making the handrails compliant with US accessibility standards (and maybe Australian standards) requides some tweeking but it is doable. StairBuilder is expensive for a one trick pony but it can make almost anything. Its one Achilles heal seems to be stairs with varying width......
Nattering nabob of negativism
2023 MBP M2 Max 32GM. MaxOS-Current
muzedesigns
Participant
I downloaded the demo for Archistair - and whilst it seems promising, I can't justify that expense for something that can be done manually (at this point in time).. plus I can't seem to manipulate the ArchiStair model to be a three landing stair.. (I didn't spend to much time trying though either - so if it can be done I trust you).

In saying that.. My real attraction to ArchiStair would be the easy manipulation of the handrails.. That looks great - so its purchase may be more in the near future for me than expected.

In the end I combined two L-Shape stairs with an adjoining platform - The hand rails will be another challenge another day.

Thanks guys!
Chrissy Avramidis
|| ArchiCAD Versions 7-22 ||
|| 27inch iMac Pro (2017) | macOS High Sierra 10.13.6 | Processor 3 GHz Xeon W | Memory 64GB 2666 MHz DDR4 | Graphics Radeon Pro Vega 64 16368 MB||
Anonymous
Not applicable
Think AC12 will have a good Stair Maker, so may be a wait will be in order. If they fail, then do not know what to say...
Chazz
Enthusiast
muzedesigns wrote:
I can't justify that expense for something that can be done manually
I can't speak for ArchiStair (haven't used it since the beta) but the advantage to a tool like StairBuilder is that you can change a whole campus worth of stairs in one click. Need a slightly different rail treatment? Did the floor-to-floor height just change? Easy to edit in Stairbuilder but not really feasible if you use slabs.

All of this points to the fact that expensive Architectural CAD software should have a dedicated stair tool that really works...
Nattering nabob of negativism
2023 MBP M2 Max 32GM. MaxOS-Current
muzedesigns
Participant
Exactly - each new version of ArchiCAD show incorporate and utilize the research of popular useful products..
ArchiStair, ArchiRotate..
Somethings should just be included as a standard (ha - wishful thinking).
Hopefully Version 12 will answer our stair prayers! (Fingers Crossed!)
Chrissy Avramidis
|| ArchiCAD Versions 7-22 ||
|| 27inch iMac Pro (2017) | macOS High Sierra 10.13.6 | Processor 3 GHz Xeon W | Memory 64GB 2666 MHz DDR4 | Graphics Radeon Pro Vega 64 16368 MB||
Anonymous
Not applicable
muzedesigns wrote:
........Version 12 will answer our stair prayers! (Fingers Crossed!)
As I hear ArchiStair is coming up with a new version following AC12 & likely GS will redo Stairmaker interface just like what they did with Interactive Schedule for AC11 WITH OUT any functionality improvement. But any improvement with StairMaker functionality remains to be seen, hopeful with all the complaints they will not let us down.
I have ArchiStair but stop using it since at each AC version the Add-On lacks behind do to being API driven (unlike Add-Ons like Objective).
Joseph

Still looking?

Browse more topics

Back to forum

See latest solutions

Accepted solutions

Start a new discussion!