cancel
Showing results for 
Search instead for 
Did you mean: 
cancel
Showing results for 
Search instead for 
Did you mean: 
Collaboration with other software
About model and data exchange with 3rd party solutions: Revit, Solibri, dRofus, Bluebeam, structural analysis solutions, and IFC, BCF and DXF/DWG-based exchange, etc.

Window and Door Schedule

Anonymous
Not applicable
HI All,

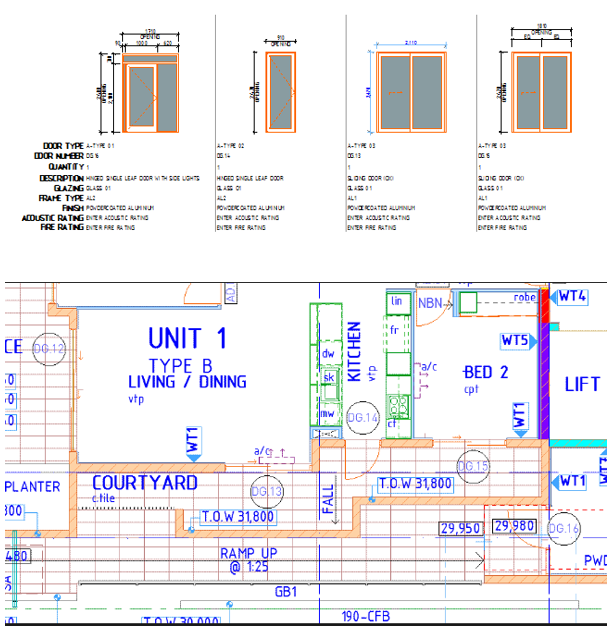
I have a window system that was used in Auto-cad and am having trouble producing a similar system. Archicad calls up all the different door TYPES. The doors are then all tagged ie. DG01-DG15 (door ground 1-15). The problem I have is once the door is tagged Archicad reads it as a different door.

Is there anyway to have a different Door tag number and keeping the door type is the schedule.

The attached will hopefully assist with understanding my request.

Door Schedule.PNG
2 REPLIES 2
Anonymous
Not applicable
Unfortunately not. You could group the same doors under same column if you go to "Document"- "Schedules and Lists" - "Schedules" - "Scheme Settings" - "Door Schedule" and remove the "Compact element ID" field.
Add a "Custom text" field where you'll have to add all the door tags (DG01...) manually later.
Anonymous
Not applicable
pkdsdrawn wrote:
The attached will hopefully assist with understanding my request.
I looked at the image, but I don't think I understand what you are trying to achieve. If this issue is still current, would you care to elaborate?