cancel
Showing results for 
Search instead for 
Did you mean: 
EN
cancel
Showing results for 
Search instead for 
Did you mean: 
Gerry Leonor
Advisor

Dimensioning Rails & Stairs

i doubt it's a bug, either way it's annoying...but please, tell me if i'm doing it wrong.
when dimensioning Stairs or Rails, you cannot have a Linked dimension node to many parts of the Stair and Railing elements.

 

3D view of stair model for reference:

GerryLeonor_3-1686274782550.png

 

 

Stair below:

GerryLeonor_0-1686274581083.png

i'd like to dimension an entire flight width (from one node of the inner-stringer to the outer-stringer). you're able to see the blue highlight saying it's 'associative', but when placing a dimension node, it turns it Static.
in this instance, the only Linked Node are the stair treads. the workaround here is to use Hotspots, otherwise my Graphic Override shows static dimensions as RED.

 


Railing below:

GerryLeonor_1-1686274589541.png

 


Rails are worse. the Dim Nodes don't even Link to the Reference Lines/Nodes of the Rail Tool. the only Linked Nodes are the Centers of the Rail Tool even if the Reference lines are offset to one side.

GerryLeonor_2-1686274601213.png

again, the workarounds here are to use Hotspots, unless your tagging the CLs of the Rails, which doesn't help us because it's the Clearance Dimension (between rails) that's important. (Note: the 763mm dimension is tagging the Reference Line nodes, which remain Static)

AC27 | Win11 | 64Gb RAM | Intel i7 13700F | RTX 4070 Ti
>come join our unofficial Discord server
https://discord.gg/XGHjyvutt8
2 Replies 2
sayon3d
Booster

Hi Gerry,

in my floor plan drawings, I only dimension the with and length and number of flights.

Then in the 3D window,,,Right-click on a empty space and choose....new 3D document.

Now in that document you can dimension vertical, horizontally and in diagonal.

And that 3D document, place it on your layout.

That´s the easiest way. 

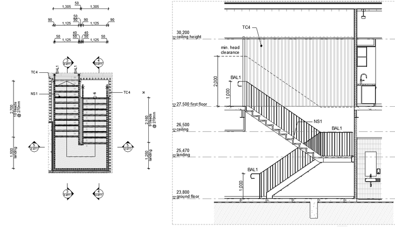
Gerry Leonor
Advisor

sadly, that's not enough for us.

GerryLeonor_0-1686529656437.png

for compliance purposes, we need to show that we have enough clearance for the stairs, rails & the surrounding walls.

the elevation/section dimensions are OK. the Linked Node seems to work well for the Rail & Stair Tools.

AC27 | Win11 | 64Gb RAM | Intel i7 13700F | RTX 4070 Ti
>come join our unofficial Discord server
https://discord.gg/XGHjyvutt8

Still looking?

Browse more topics

Back to forum

See latest solutions

Accepted solutions

Start a new discussion!