cancel
Showing results for 
Search instead for 
Did you mean: 
EN
cancel
Showing results for 
Search instead for 
Did you mean: 
Anonymous
Not applicable

Surface Cleanup Model Views

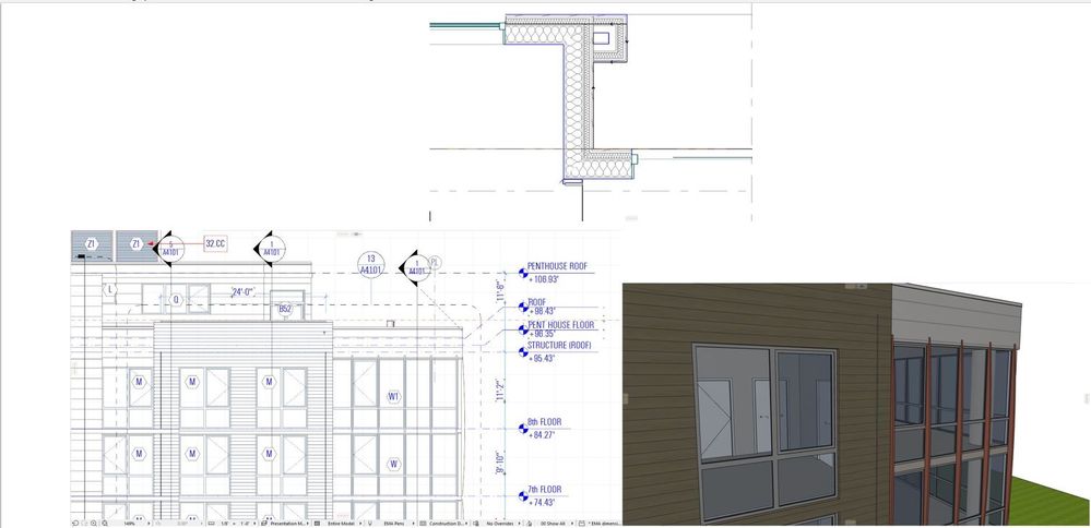
Hey Guys' Im desperate. I do not understand why my wall surfaces are not cleaning up in the 3D and elevation views. As I understand it wall surfaces of similar materials should cleanup with no problem in 3D and elevation views but in this instance i cannot seem to get them to do so. The intersection priorities of the wall assembles are the same, as are the surfaces and the wall intersection lines intersect cleanly. I have even tried returning the exterior wall surface along the depth face of the walls and I'm still getting a material separation line in the Model view. I'm hoping that i'm missing something simple t and someone may be able to help. please see images attached

Wall intersection problem.JPG
0 Replies 0

Still looking?

Browse more topics

Back to forum

See latest solutions

Accepted solutions

Start a new discussion!