cancel
Showing results for 
Search instead for 
Did you mean: 
EN
cancel
Showing results for 
Search instead for 
Did you mean: 
Anonymous
Not applicable

Internal room layouts

Hi All,

Can I ask what method people use for internal layouts. I learnt a method back on version 7 from Barry, but I feel that may be a bit out-dated. Then again it could be the best method.

The method I'm using in the layout book is using 2 drawing windows.
The first window contains all the walls, doors, cabinetwork etc. The second just has the text.

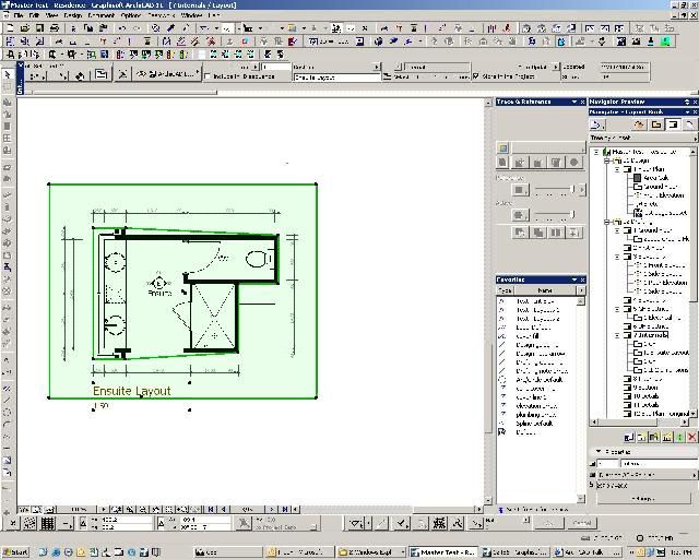
The first window is manipulated in the layout book so the walls are cut away to just show the walls relevant to the layout. The second window is overlayed and lined up using a hotspot. The out come is show attached.

I'm open to a new method, if it is more efficient.

Any input is greatly appreciated.

room layout.JPG
1 Reply 1
Barry Kelly
Moderator
moloneyds wrote:
Hi All,

Can I ask what method people use for internal layouts. I learnt a method back on version 7 from Barry, but I feel that may be a bit out-dated. Then again it could be the best method.

The method I'm using in the layout book is using 2 drawing windows.
The first window contains all the walls, doors, cabinetwork etc. The second just has the text.

The first window is manipulated in the layout book so the walls are cut away to just show the walls relevant to the layout. The second window is overlayed and lined up using a hotspot. The out come is show attached.

I'm open to a new method, if it is more efficient.

Any input is greatly appreciated.
It's still one of only two ways I can see of doing what you want if you want the walls cropped to a different extent than the text/dimensions.

The other is to use a white solid fill in the text layer.
Make it larger than the extent of your text and then cut a whole and manipulate this to show through just the extent of walls that you want.
Then add text and dimensions.
You will need to juggle bits forward and backwards in display order to get what you want.
But then you only need one drawing placed in your layouts.

I still use the two drawings and crop each to suit.
A simple hotspot in the Archicad layer makes them eay to align with each other.

But if anyone has any other ideas for showing a 1:50 blowup of just a small section of plan please share them.
To clarify - the aim here is to have text and dimension surrounding the enlargement without having the rest of the surrounding walls showing through the text.

Barry.
One of the forum moderators.
Versions 6.5 to 27
i7-10700 @ 2.9Ghz, 32GB ram, GeForce RTX 2060 (6GB), Windows 10
Lenovo Thinkpad - i7-1270P 2.20 GHz, 32GB RAM, Nvidia T550, Windows 11

Didn't find the answer?

Check other topics in this Forum

Back to Forum

Read the latest accepted solutions!

Accepted Solutions

Start a new conversation!