cancel
Showing results for 
Search instead for 
Did you mean: 
EN
cancel
Showing results for 
Search instead for 
Did you mean: 
7ikario
Contributor

Drawing/sketching and Modeling on top of 3d saved view.

Hello members, is there any way to Save Archicad (any version possible) view in 3d and then model/sketch and change geometry directly on top of it (in 3d). maybe u have figure it out, if there is this kind of workflow available. I hope i made my statement and question clear. tnax

1 Solution

Accepted Solutions
Steve Jepson
Virtuoso

There is probably still something about your question that is not clear, however, perhaps even some answers that are not exactly what you want to know will help you refine your question.  ? 

What I think you might be asking is if there is a way to model over/on/relative to an image of a model view or other 2D content - while you are working in the 3D window.   Yes.  The basic idea is to use the image as a texture you apply to an element you can see in the 3D window - so you can model what you're looking at better.  Perhaps even trace it.   

Yes.  I do that quite often.  By the time I go to where the image/picture is, and back to where I want to model it in the 3D window, I may have forgotten the important details I needed to see in the picture.  So it is very convenient to have (for example) a picture of what you are modeling - to scale - on a wall or slab you can keep in view working in the 3D window.   Getting the image applied to an element as a texture, so you can view it in the 3D window is easy - getting it to scale gets to be a little fussy.   Before I bother to explain how to do that,  is this even what you want to do? 

ArchiCAD 25 7000 USA - Windows 10 Pro 64x - Dell 7720 64 GB 2400MHz ECC - Xeon E3 1535M v6 4.20GHz - (2) 1TB M.2 PCIe Class 50 SSD's - 17.3" UHD IPS (3840x2160) - Nvidia Quadro P5000 16GB GDDR5 - Maxwell Studio/Render 5.2.1.49- Multilight 2 - Adobe Acrobat Pro - ArchiCAD 6 -25

Go to post

6 Replies 6
Steve Jepson
Virtuoso

There is probably still something about your question that is not clear, however, perhaps even some answers that are not exactly what you want to know will help you refine your question.  ? 

What I think you might be asking is if there is a way to model over/on/relative to an image of a model view or other 2D content - while you are working in the 3D window.   Yes.  The basic idea is to use the image as a texture you apply to an element you can see in the 3D window - so you can model what you're looking at better.  Perhaps even trace it.   

Yes.  I do that quite often.  By the time I go to where the image/picture is, and back to where I want to model it in the 3D window, I may have forgotten the important details I needed to see in the picture.  So it is very convenient to have (for example) a picture of what you are modeling - to scale - on a wall or slab you can keep in view working in the 3D window.   Getting the image applied to an element as a texture, so you can view it in the 3D window is easy - getting it to scale gets to be a little fussy.   Before I bother to explain how to do that,  is this even what you want to do? 

ArchiCAD 25 7000 USA - Windows 10 Pro 64x - Dell 7720 64 GB 2400MHz ECC - Xeon E3 1535M v6 4.20GHz - (2) 1TB M.2 PCIe Class 50 SSD's - 17.3" UHD IPS (3840x2160) - Nvidia Quadro P5000 16GB GDDR5 - Maxwell Studio/Render 5.2.1.49- Multilight 2 - Adobe Acrobat Pro - ArchiCAD 6 -25

7ikario
Contributor

yes, my friend i never thought about it, so basically u can apply any sketch to different faces of a massing model and then refine it, thanx. ❤️

 

Steve Jepson
Virtuoso

sort of.  You could use the Morph tool to trace lines shown in an image if you want them to be 3D.  But you could also model them with a wall or beam the size of a pen tip, and then convert them all at once into a Complex Profile or something from a library. 

 

Show an example of what you would like to model in the 3D window and perhaps I could offer you some tips on how to do it ? 

Below is a picture/texture on a wall that I was using for a modeling reference.

2023-09-05_12-59-21.png

 

 

 

 

 

 

 

 

A properly scaled image/texture of a floor plan can be put on a slab, and then walls can be modeled to set right on it.  Or the building model displayed in a cut-away and setting on the image/texture floor plan for some interesting views of a pseudo-3D floor plan.

Not a great example but you get the idea I am sure. 

With properly scaled image on the slab, you could just model the walls in the 3D window right on the slab that has the Image Fill of the floor plan on it for 2D stuff, and the same image as a Texture for use with the 3D window.   

 

The way you do this is to take a screen shot of the floor plan, a little larger will not hurt.   

Then paste the image into a Plan View.  

Draw some lines a dimensiond distance apart for some dimension shown on the floor plan

Resize the image so the dimensions show match the lines drawn and dimensioned the same

Now the important part --  place a hot spot on each corner of the entire resized image 

Dimension those hot spots Horizontal and Virtical

 

Now when you create an Image Fill give it those dimensions of the resized image fill.  

 

Draw a slab from corner to corner to match the size of that Image Fill.  

In the 3D window you can now apply the Surface as a Texture that you made from the Resized Image.

 

Now it should look correct in both 2D and 3D view.  

 

2023-09-05_14-00-25.jpg

 

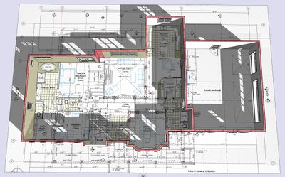
Below is a view of a slab with the Image Fill of a floor plan screenshot. 

2023-09-05_13-12-38.jpg

 

 

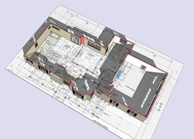
Below is another 3D view of the slab with some walls traced per the scaled texture on the slab. 

2023-09-05_14-22-58.jpg

 

This is a crude example but shows how it can be done.

 

Where I have more use for something like this than floor plans is with photographs of some ornament/object I need to model. I can put lots of images on a wall that is always visible to me in 3D view.

 

 

 

 

ArchiCAD 25 7000 USA - Windows 10 Pro 64x - Dell 7720 64 GB 2400MHz ECC - Xeon E3 1535M v6 4.20GHz - (2) 1TB M.2 PCIe Class 50 SSD's - 17.3" UHD IPS (3840x2160) - Nvidia Quadro P5000 16GB GDDR5 - Maxwell Studio/Render 5.2.1.49- Multilight 2 - Adobe Acrobat Pro - ArchiCAD 6 -25

7ikario
Contributor

     hi, Steve thanks for reply i really appreciate your affort and attention towards me and this topic. thou i dont get the first picture, did u make it transparent to see trough when u were modeling to match it. I know that sketchup has photomatch function so i'm searching for something like that but in archicad because it's more robust and accurate for me than sketchup. just a personal preference.
    I'm using Archicad for quite some time but i never thought about this workflow so basically i have no problems sketching some free perspectives and i wanna learn how to transfer them or correct some lens in photoshop before starting modeling, so down below is attached sketches of mine and i wanna to model it in 3d, any ideas and suggestions will be crucial for me in future workflow. P.S. i've came across to some camera options and camera align tools which I've always skipped, so main idea is are they accurate and helpfull wen constructing from photo or a hand drawn image or it's better to experiment just with what you've suggested.

also feel free to critic my perspective sketches if u thinks something is off or just suggest how to fix them for better modeling scenarios.

62b29f179400857.64f96268659da.jpg7412ff179400857.64f8d237aacc8.jpg84e016141011563.64f8e5c9994f2.jpeg

Steve Jepson
Virtuoso

in the first picture, I just placed an image on a wall so I could use it as a visual reference in the 3D window.  

In the other pictures,  the image/screenshot is resized to scale and has dimensions that make it easy to trace using walls.  It can be done precisely by typing in the distance of each wall or by tracing manually and adjusting later.  This is now you can do this in the 3D widow if you like, vs in 2D Plan view if you want to do it that way sometimes.  

 

As far as how to model what you are showing in your sketches -  because they are drawn in perspective they will not be useful for much more than a visual aid.  However, you can certainly model whats in those sketches with ArchiCAD.  The only complexity I see is the concavity, but this can be done easy enough with Morphs and some SEO. 

 

2023-09-11_13-48-34.jpg

 

 

 

 

ArchiCAD 25 7000 USA - Windows 10 Pro 64x - Dell 7720 64 GB 2400MHz ECC - Xeon E3 1535M v6 4.20GHz - (2) 1TB M.2 PCIe Class 50 SSD's - 17.3" UHD IPS (3840x2160) - Nvidia Quadro P5000 16GB GDDR5 - Maxwell Studio/Render 5.2.1.49- Multilight 2 - Adobe Acrobat Pro - ArchiCAD 6 -25

Steve Jepson
Virtuoso

about modeling the structure in your sketch.  The first question is what is it going to be?  Is it a building, a monument, or just an exploration of a concept....  are you making an initial model for the sake of exploring the potential structural systems and building materials to make it with...  all kinds of things determine how you might model what's in your sketch with ArchiCAD. 

 

When something like your sketch is modeled with ArchiCAD, it usually involves a bit of trial and error with what elements and/or objects will be used to establish the final geometry.  

I have only a about 1/2 hr now to do that.  I will post later what I used to model it.  

 

 

 

 

ArchiCAD 25 7000 USA - Windows 10 Pro 64x - Dell 7720 64 GB 2400MHz ECC - Xeon E3 1535M v6 4.20GHz - (2) 1TB M.2 PCIe Class 50 SSD's - 17.3" UHD IPS (3840x2160) - Nvidia Quadro P5000 16GB GDDR5 - Maxwell Studio/Render 5.2.1.49- Multilight 2 - Adobe Acrobat Pro - ArchiCAD 6 -25

Still looking?

Browse more topics

Back to forum

See latest solutions

Accepted solutions

Start a new discussion!