cancel
Showing results for 
Search instead for 
Did you mean: 
EN
cancel
Showing results for 
Search instead for 
Did you mean: 
Anonymous
Not applicable

View display of Detail drawings

Please note the two attached screenshots. The first shows the detail marker, and the second show the detail drawing. I need to see all elements in the drawing - not just the 'core elements'. I've looked through the settings, and can't find where to fix this problem. The 'Structure Display' option is greyed out.

1.gif
2 Replies 2
Anonymous
Not applicable
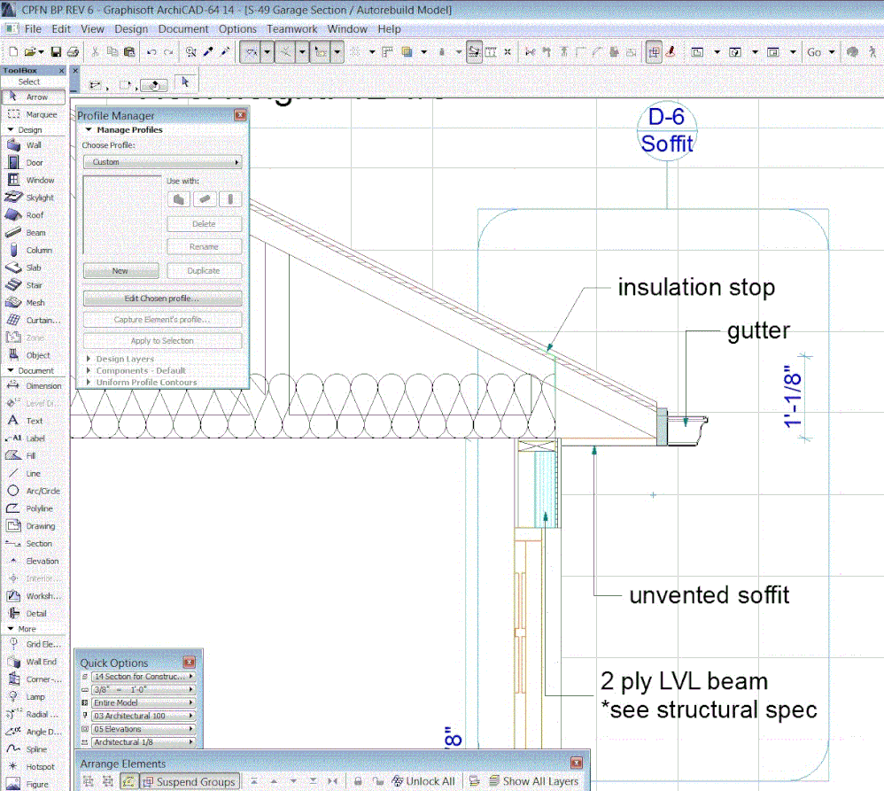
This is the detail drawing showing only "core"
David Maudlin
Rockstar
LINZ:

In the Detail Window, after changing the Structure Display (via the Quick Options palette) to Entire Model, did you Rebuild from Source View?

David
David Maudlin / Architect
www.davidmaudlin.com
Digital Architecture
AC29 USA Perpetual • Mac mini M4 Pro OSX15 | 64 gb ram • MacBook Pro M3 Pro OSX14 | 36 gb ram

Still looking?

Browse more topics

Back to forum

See latest solutions

Accepted solutions

Start a new discussion!