cancel
Showing results for 
Search instead for 
Did you mean: 
cancel
Showing results for 
Search instead for 
Did you mean: 
Collaboration with other software
About model and data exchange with 3rd party solutions: Revit, Solibri, dRofus, Bluebeam, structural analysis solutions, and IFC, BCF and DXF/DWG-based exchange, etc.

Creating Door Schedule

Anonymous
Not applicable
For the first time I am trying to create a door schedule that will be interactive with the plan.

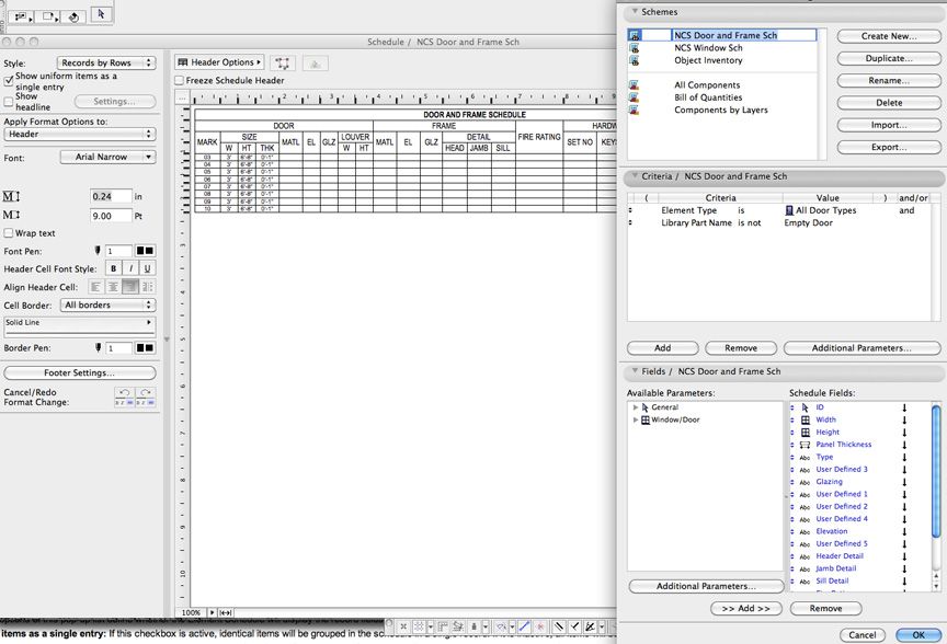
To create the Door Schedule I went to Document > Schedules > NCS Door & Frame Schedule. I like the simplicity of this format.

Questions:
1) How does one reinsert any deleted line items underneath the Schedule Field in the Scheme Setting window? For example if I deleted the detail column in the Schedule Fields, I am unable to recover it. The only reason I am able to display the default NCS Door Schedule in the attachment because I didn't save the changes.

2) On the plan there are thirty-six doors but only seven are displayed on the schedule. I did assign custom ID no. to each of the thirty-six doors. The door numbers shown in the Mark column reflect the doors default ID no.

Please refer to attached screen capture.


Thanks

Screen shot 2011-12-29 at 2.45.14 PM.jpg
9 REPLIES 9
Dave Seabury
Advocate
Dave

Second item first...it's the easiest....
looking at your screen shot, upper lefthand corner you have selected uniform items as a single entry, deselect this.

To add a parameter for listing back in, again looking at your screen shot, lower right hand corner, select the additional parameters tab, you may have to select the door(s) you are working with and then select the parameter you want to list.

Hope that helps

Dave
AC 19-26 Windows 10 64 bit, Dell Prercision 7820, Xeon Silver 2414R ( 12 Cores), 64 GB Ram, Quadro RTX 4000 8GB
Anonymous
Not applicable
Dave,
Thanks for your response. Unchecking the 'uniform item' did result in display of all 36 doors. However in the 'Mark' column it still displays the default door ID no. not the custom door ID no as displayed on the plan. This custom ID no was assigned to the doors in the Door Selection Setting window.

Also I did look into the additional parameter tab before I initially posted my comment. I noticed most of the line items, such as the 'Jamb Detail' or 'Head Detail' are not available in the Available Parameter-Window/Door. I hope there is way to reinsert them if one is eliminated by accident or intent.

See attached screen capture.
Screen shot 2011-12-29 at 3.48.02 PM.jpg
Dave Seabury
Advocate
Dave,

I usually schedule the door "ID" that is assigned in the door tool. If you want to schedule a different parameter for the ID, you need to add that parameter to the schedule. Attached is a screen shot of the "Additional Object Parameters" window that comes up if you select the "Additional Parameters" tab (blue). You have to go through the library and select the door you are working with and it will show you all available parameters for listing.

Dave
AC 19-26 Windows 10 64 bit, Dell Prercision 7820, Xeon Silver 2414R ( 12 Cores), 64 GB Ram, Quadro RTX 4000 8GB
Anonymous
Not applicable
And select (only used objects) or something like that.

It will list only the used objects by the current file, which is a huge timesaver.
Anonymous
Not applicable
Dave,
I was able to correctly show the modified ID no. on plan by selecting the 'ID no." instead of the 'Custom Text' under the 'Marker Settings' in the Door Selection Settings window.

I went ahead AND followed your advise and added a 'Header Detail' column in NCS schedule. It's now located at the far right of the schedule. See attached.

I am still struggling to find out how to move it under the Detail column, in same row as Jamb and Sill.

Still unable to find out how to add empty rows wherever I want in the schedule grid.

Also unable to change the default door leaf thickness. Mine always reverts back to 1" when I change it in the Door Settings window or in the NCS schedule.

Krippahl,
Thanks for the tip. It sure makes it easier to navigate after selecting the 'only used objects' instead.

Thank you both for your help. HAPPY NEW YEAR!!!
Dave Seabury
Advocate
Dave

To add the 'header detail' under the "detail column" you have to rebuild the
FRAME column.

select the header cell 'frame'. In the upper right corner of your screen shot, just to the right of 'Records by Rows' is the 'header options' tab, click that and select 'delete selected cell'

now do the same for the 'detail column'

you will need to change the location of the header detail column. You do this back at the 'scheme settings tab'. Under the 'Schedule Fields' is a list of all the parameters in your schedule. The order in which they appear in the schedule is top to bottom > becomes > left to right. On the left hand side there is an up and down arrow. grab that arrow next to "header detail" and slide it up until it is under the parameter for 'sill', click OK

Now, using the shift key, select the cells for MATL / EL / GLZ / Jamb / Sill / Header. Again go back up to the 'header options' but this time select
insert header above cell. You can rename the header as needed.

Now select Jamb / Sill / Header and again insert a header......Done

Dave
AC 19-26 Windows 10 64 bit, Dell Prercision 7820, Xeon Silver 2414R ( 12 Cores), 64 GB Ram, Quadro RTX 4000 8GB
Anonymous
Not applicable
Dave,

Thanks! It works!.

Dave
Anonymous
Not applicable
How can i change the graphics of the actual table? I want to have "Frame" as a header, then "material" "elevation" "details" as subheaders. I don't know how to do this.
My schedule right now has "Frame" with "head, sill and jamb detail" under it, but i want to add material and finish. How do i do this?
Anonymous
Not applicable
Thank you!! I've been trying to figure this out forever!! Thank you!