cancel
Showing results for 
Search instead for 
Did you mean: 
EN
cancel
Showing results for 
Search instead for 
Did you mean: 
EXPODTL
Contributor

floor plan cut plane

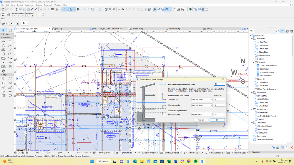
This Floor Plan Cut Plane has to be reset every time I open my Lower floor plan. This command works fine for the Main floor plan.  What am I doing wrong?


Screenshot (1).png
2 Replies 2
Lee Hankins
Virtuoso

Select the view you are opening from the Navigator then click settings and select the Floor Plan Cut Plan button. You can set the Floor Plan Cut Plane relative to each view so it is remembered. If you set it from the main menu once the view is open it won’t be remembered and will be reset when you open an alternative floor plan view. 

Lee Hankins
ArchiCAD 4.5 - Archicad 29
macOS Tahoe (26.0)
Karl Ottenstein
Moderator Emeritus

The FPCP is saved with each View.  Ideally, you should be navigating Views as you work on your project, once everything has been set up.

 

Vote for Wish: Copy/Paste in 3D

AC 29 USA and earlier   •   hardware key   •   macOS Tahoe 26.5 MacBook Pro M2 Max 12CPU/30GPU cores, 32GB

Still looking?

Browse more topics

Back to forum

See latest solutions

Accepted solutions

Start a new discussion!