cancel
Showing results for 
Search instead for 
Did you mean: 
cancel
Showing results for 
Search instead for 
Did you mean: 
Documentation
About Archicad's documenting tools, views, model filtering, layouts, publishing, etc.
SOLVED!

interior elevation & zone name?

proto
Advocate

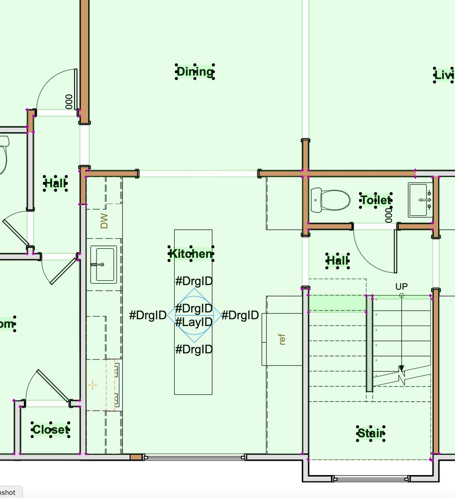
Hopefully this is a simple syntax question easily answered by the pros here...I'm having trouble with a zone name not populating to the interior elevations. [Not sure if it's problematic for other rooms, this is the first I'm creating in this file.]

 

<ZoneName> is the autotext listed in the Name of the Interior Elevation Selection Settings.

When I spacebar-created the marker, it tried to make 8 int elev views. So, I used the 2-point (or rectangle) tool option to select the corners of the room. That, at least, got me to the expected four interior elevations.

 

Two out of four correctly name the room where the interior elevation marker resides.

 

The Kitchen zone perimeter is precisely positioned on the inside surface of the bounding walls. So are the offending neighboring Zone names.

 

What am I missing about getting these to track appropriately with the Zone within which the interior marker resides? [I am aware I could force the name & move on.]

 

Interior Elev marker selected in Kitchen.Interior Elev marker selected in Kitchen.Note the tabs labeled with rooms outside the Kitchen.Note the tabs labeled with rooms outside the Kitchen.

 

Thanks for any assistance!

mac ACv29/3200, US, Tahoe26.1, iMac/2025 Mac Studio
1 ACCEPTED SOLUTION

Accepted Solutions
Solution
proto
Advocate

OK, I figured it out.

In the Interior Elevation Marker Settings, I changed the Horizontal Range from Infinite to Limited.

For some reason, there was a Limit line for each of the two weirdly named elevations that drifted past the bounds of the kitchen walls.

 

int-elev-limit.jpg

 

I slid those back into the room & boom, back to regularly expected operation!

mac ACv29/3200, US, Tahoe26.1, iMac/2025 Mac Studio

View solution in original post

7 REPLIES 7
Barry Kelly
Moderator

I don't have a solution for you, but can you confirm the kitchen/dining and kitchen/closet zones don't actually touch?

i.e. there is a wall gap between them?

 

BarryKelly_0-1649119635680.png

 

Barry.

 

One of the forum moderators.
Versions 6.5 to 27
i7-10700 @ 2.9Ghz, 32GB ram, GeForce RTX 2060 (6GB), Windows 10
Lenovo Thinkpad - i7-1270P 2.20 GHz, 32GB RAM, Nvidia T550, Windows 11

yes, they do not touch

 

zones.jpg

mac ACv29/3200, US, Tahoe26.1, iMac/2025 Mac Studio

Works fine for me? Even when the Kitchen/Dining Zones touch

But I did a manual placement, click in corner and diagonal click in the other

navigator.png

plan.png

Archicad 4.1 to 28 Tech Preview. Apple Silicon
you can't build a line
Mac Studio
iPad Pro
iPhone

that would be my expectation too & I followed same manual placement you did

 

i'll check today if any demo vs new have any weird overlaps...maybe it's reading something there?

mac ACv29/3200, US, Tahoe26.1, iMac/2025 Mac Studio
Solution
proto
Advocate

OK, I figured it out.

In the Interior Elevation Marker Settings, I changed the Horizontal Range from Infinite to Limited.

For some reason, there was a Limit line for each of the two weirdly named elevations that drifted past the bounds of the kitchen walls.

 

int-elev-limit.jpg

 

I slid those back into the room & boom, back to regularly expected operation!

mac ACv29/3200, US, Tahoe26.1, iMac/2025 Mac Studio

Thanks for letting us know.

 

Barry.

One of the forum moderators.
Versions 6.5 to 27
i7-10700 @ 2.9Ghz, 32GB ram, GeForce RTX 2060 (6GB), Windows 10
Lenovo Thinkpad - i7-1270P 2.20 GHz, 32GB RAM, Nvidia T550, Windows 11
Robert Nichols
Advocate

Just bumped into this problem. It's fairly brutal, going around to adjust that view limit line that extends beyond the boundary wall. It shouldn't have an impact, when the elevation is set to unlimited right? But somehow it does, then you have to switch to limited mode to tweak the scope of the marker graphically, then switch back to infinte to get, for example, window mullion detail at an exterior wall? Painful. Or maybe I'm missing the straightforward solution. Do we know how to lay down an infinite IE marker so that you can work in "infinite" mode but not leave stray scope extensions that screw up zone recognition?

Mac Studio, 32gb ram, ArchiCAD v26 (Apple Silicon) MacOS 13