cancel
Showing results for 
Search instead for 
Did you mean: 
EN
cancel
Showing results for 
Search instead for 
Did you mean: 
Anonymous
Not applicable

How to make a door that is hanging over the floor composite?

Problem:
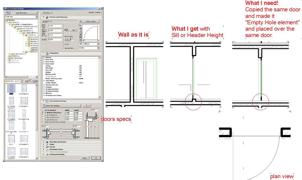
How to make a door, that is placed into the wall with distance from the floor concrete so, that floor's upper "pie" goes thru?
Seems simply, but as it seems I've tried different settings for door and finnaly get my needed result by cheating.
To elevate door I used Sill or Header height - I copied the same door, made it as Empty Hole and gave it a comlete height of the necessary opening so it terminates the piece of wall that pops up from ground, and placet it over the same door.
Problem is, I got 5 stair building with 100+ doors, making doubles of all doors and making them Empty Hole etc. is not handy at all.

Question:
Is there a normal way to achieve such a simple task?

problem.JPG
2 Replies 2
There is!

Under parameters, go to opening oversize. Add the required distance in the Lower Opening Oversize. And you're done.
Jared Banks, AIA
Shoegnome Architects

Archicad Blog: www.shoegnome.com
Archicad Template: www.shoegnome.com/template/
Archicad Work Environment: www.shoegnome.com/work-environment/
Archicad Tutorial Videos: www.youtube.com/shoegnome
Anonymous
Not applicable
Allways helpfull in this forum.
THANK YOU VERY MUCH!

Didn't find the answer?

Check other topics in this Forum

Back to Forum

Read the latest accepted solutions!

Accepted Solutions

Start a new conversation!