This one is dead simple but useful like the mouse wheel is useful.
It's basically a free floating dimension line that acts like a regular line and it's dimension properties are independent of the model view, working units, or anything else meaning it can display imp or metric and won't switch.
It should have all the regular parameters like changing the arrow head, color, or line weight.
If it could be 3D, that would be awesome.
But it has to be an object unto it self so it's not subject to rules or parameters meant for things like lines and dimensions.
The reason why I bring this up is I use this technique already but it's clumsy and finicky.  I create a line the length I need it and attach a dimension to it.  The way it is now some caveats are I have to grab both the dimension 
and
 the line to duplicate them and the line has to stay on it's original angle because the dimension doesn't rotate with the line.
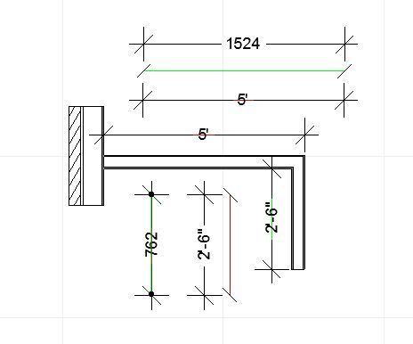
In the attached picture you'll see I have lines that are the exact length that I need and a dimension attached to the line to display the length.  I can use those lines to make sure my objects are where they need to be.  Not only by creating hotspots but more importantly by creating a visual record I intentionally put that measured distance there.  That's something merely dimensioning something and then hiding the dimensions on a hidden layer can't do as sometimes objects get deleted or moved and the dimension is broken or readjusted.  And if it's not visible, such as a hidden layer, breaking dimension doesn't throw up an error, it's easy to loose track of what has and hasn't been done.  The way I do it the line stays there no matter what.  And if things are changing that has been useful for me to see it.  Plus I monitor my progress by changing line colors and noting the date off to the side so I can tell when something was done or changed.
I don't know if anyone else does this, even partially, but a free floating permanent dimension object that displays it's length no matter what angle would be extremely useful (to me at least, but I think others would find it very useful as well).
I just wanted to note in the picture, the two lines by the walls is how I use what I've been describing.  The lines apart from the wall are examples of metric and imp at the same time and I pulled the dimension away from the line to show its just that, a line and a dimension.
