cancel
Showing results for 
Search instead for 
Did you mean: 
cancel
Showing results for 
Search instead for 
Did you mean: 
Sustainable design
About EcoDesigner, Energy Evaluation, Life Cycle Assessment, etc.

Ecodesigner star question?

Anonymous
Not applicable
I posted a thread/question about Ecodesigner Star and how it handles shading, and I see that its gone, been removed.

Any reason for this?
39 REPLIES 39
Anonymous
Not applicable
I would like to be added to the forum as well. Thanks.
Anonymous
Not applicable
May I also have access to the Ecodesigner Star beta forum. I need answers and guides on how to use it properly. Thank you!
Laszlo Nagy
Community Admin
Community Admin
tan nguyen and Mia Montemayor,
I have enabled you both for the forum.
Loving Archicad since 1995 - Find Archicad Tips at x.com/laszlonagy
AMD Ryzen9 5900X CPU, 64 GB RAM 3600 MHz, Nvidia GTX 1060 6GB, 500 GB NVMe SSD
2x28" (2560x1440), Windows 10 PRO ENG, Ac20-Ac28
Anonymous
Not applicable
Hi,
i'm using EcoDesigner for AC16 EDU, i need it for my thesis work.
The problem is that i'm facing different problems, from zones to construction methods that appeal to EcoDesigner.
Can i contact someone for a more deep help in solving these problems?
i would really appreciate that.

thanks
franfef
Anonymous
Not applicable
franfef wrote:
Hi,
i'm using EcoDesigner for AC16 EDU, i need it for my thesis work.
The problem is that i'm facing different problems, from zones to construction methods that appeal to EcoDesigner.
Can i contact someone for a more deep help in solving these problems?
i would really appreciate that.

thanks
franfef
Hi Franfef,

Please post the issue in this forum with detailed description and if possible, add some screenshots. Hope I can help further.

cheers,
Anonymous
Not applicable
Hi Kevin, thanks for helping me out.

so, this is the situation:
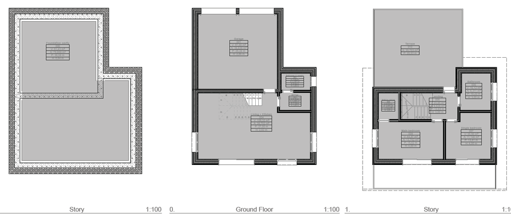
plans and sections as image. simple 2 storys wood technology building.
U values for envelope are around 0,14, so definitely low.
When i perform the analysis, the amount of energy varies between 160 and 220 kWh/sqm yr, which is far from the expectations.

[...] continues
Anonymous
Not applicable
Hi Kevin, thanks for helping me out.

so, this is the situation:
plans and sections as image. simple 2 storys wood technology building.
U values for envelope are around 0,14, so definitely low.
When i perform the analysis, the amount of energy varies between 160 and 220 kWh/sqm yr, which is far from the expectations.

[...] continues
Plans.png
Anonymous
Not applicable
Sections
Anonymous
Not applicable
Then this is the structures window.
Structures.png
Anonymous
Not applicable
The uncovered areas:
there's the highlight where the stairwell is, but being it inside i should not worry about that right?
Then there's another one which is really invisible, but i checked many times in that area and everything seems to be correct.