cancel
Showing results for 
Search instead for 
Did you mean: 
cancel
Showing results for 
Search instead for 
Did you mean: 
Teamwork & BIMcloud
Tips about Teamwork, plus BIMcloud functions and settings

"Close" vs. "Leave" - No 'close' available for one user

rob2218
Enthusiast
How or what toggle/button whatever I have to activate to make this one user in our team be able to "CLOSE PROJECT"?

I've asked her not to "LEAVE" the project database since leaving it is not good.

Please help.

RR

Close-session-unavailable-small.jpg
...Bobby Hollywood live from...
i>u
Edgewater, FL!
SOFTWARE VERSION:
Archicad 22, Archicad 23
Windows7 -OS, MAC Maverick OS
8 REPLIES 8
Laszlo Nagy
Community Admin
Community Admin
The command in AC14 is called "Close Project". In AC13 it was called "Close".
Maybe the Work Environment was migrated to AC14 than the Close Project command may not be available.
Can this be the cause?
Loving Archicad since 1995 - Find Archicad Tips at x.com/laszlonagy
AMD Ryzen9 5900X CPU, 64 GB RAM 3600 MHz, Nvidia GTX 1060 6GB, 500 GB NVMe SSD
2x28" (2560x1440), Windows 10 PRO ENG, Ac20-Ac29
rob2218
Enthusiast
This teamwork project came from an IFC file.
there was no migration from 13.

How do I get the "close" or "close project" back on the "FILE" drop down menu? it's the weekend coming up and we shut down the computers and I've told all users not to "LEAVE" the project but quite frankly I have no other option. We don't leave the computers on as a policy for the weekend so what do I tell this user???
...Bobby Hollywood live from...
i>u
Edgewater, FL!
SOFTWARE VERSION:
Archicad 22, Archicad 23
Windows7 -OS, MAC Maverick OS
Erika Epstein
Enthusiast
Rob,
CLOSING archicad is all you have to do, ALTHOUGH SEND AND RECEIVE first is advisable. You can turn the computer(s) off.

HTH
Erika
Architect, Consultant
MacBook Pro Retina, 15-inch Yosemite 2.8 GHz Intel Core i7 16 GB 1600 MHz DDR3
Mac OSX 10.11.1
AC5-18
Onuma System

"Implementing Successful Building Information Modeling"
David Maudlin
Rockstar
rob2218 wrote:
How do I get the "close" or "close project" back on the "FILE" drop down menu?
Rob:

You can modify the Work Environment > Command Layout Schemes > Menus, remember to Redefine the scheme or save a new scheme to retain the changes. You could create a custom Work Environment to install on all computers in your office so there is one common WE for an office standard.

David
David Maudlin / Architect
www.davidmaudlin.com
Digital Architecture
AC29 USA Perpetual • Mac mini M4 Pro OSX15 | 64 gb ram • MacBook Pro M3 Pro OSX14 | 36 gb ram
rob2218
Enthusiast
David,
where would I get the "close project" or the "close" (which ever the case may be) function from?
From which other menu do I acquire this icon and function to drag into the "FILE" menu?
...Bobby Hollywood live from...
i>u
Edgewater, FL!
SOFTWARE VERSION:
Archicad 22, Archicad 23
Windows7 -OS, MAC Maverick OS
rob2218
Enthusiast
David,
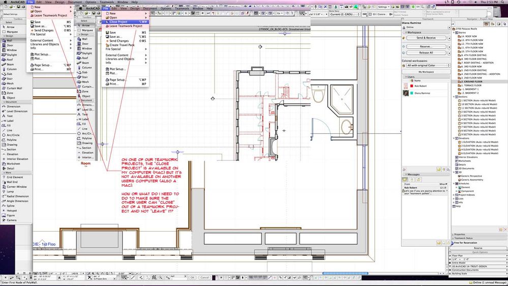
here's the screen I see on MY machine, but on the other users....I can't seem to locate where throughout the other menus can I grab the "Close project" or "Close" command and drag it into her "FILE" menu....
File-Close-project-small.jpg
...Bobby Hollywood live from...
i>u
Edgewater, FL!
SOFTWARE VERSION:
Archicad 22, Archicad 23
Windows7 -OS, MAC Maverick OS
Laszlo Nagy
Community Admin
Community Admin
On the right side double-click the File menu to enter it.
Then the items on the left will become enabled and you can drag it to the right or click the "Add Selected" button.
Loving Archicad since 1995 - Find Archicad Tips at x.com/laszlonagy
AMD Ryzen9 5900X CPU, 64 GB RAM 3600 MHz, Nvidia GTX 1060 6GB, 500 GB NVMe SSD
2x28" (2560x1440), Windows 10 PRO ENG, Ac20-Ac29
rob2218
Enthusiast
thanks all.
I spoke to David here locally.

He was able to walk me thru exactly what Lazslo was stating.

again...thanks all.
...Bobby Hollywood live from...
i>u
Edgewater, FL!
SOFTWARE VERSION:
Archicad 22, Archicad 23
Windows7 -OS, MAC Maverick OS

Didn't find the answer?

Check other topics in this Forum

Back to Forum

Read the latest accepted solutions!

Accepted Solutions

Start a new conversation!