cancel
Showing results for 
Search instead for 
Did you mean: 
cancel
Showing results for 
Search instead for 
Did you mean: 
Collaboration with other software
About model and data exchange with 3rd party solutions: Revit, Solibri, dRofus, Bluebeam, structural analysis solutions, and IFC, BCF and DXF/DWG-based exchange, etc.

DWG's in general in AC

Kamelite
Expert

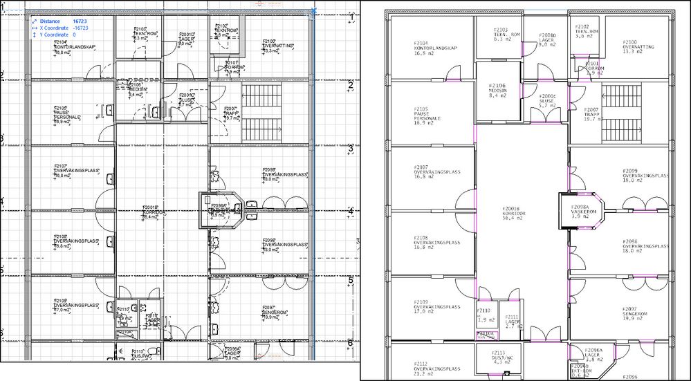
I'm working with DWG's as trace references, and I have a question: How come the DWG looks WAAY better

in DDSCadView than importet into AC? In the upper image, DDSCad is to the left, AC to the right. In the lower image, reversed.

2021-10-24_12-01-58.jpg2021-10-24_12-03-50.jpg I have played with every setting (I think) in the T&R menu, but either nothing happens, or it hides way more than I want to hide...  The DDSCad view is soo much "cleaner"...

 

Anyone?

 

.Kamelite

Windows 10, Archicad 28
4 REPLIES 4

Have you tried turning off with a leading layers in the file that you're tracing from?

I typically end up opening up the CAD file and saving a new version with only the layers I want so that I don't have to deal with any of the access that I don't need

Or you could explode it and then just delete the layers you don't want that it imports

Kamelite
Expert

No, I haven't. I guess I'l give that a try. But I'm still wondering howcome it looks beautiful in DDSCad by default, and rather ugly in AC...

 

Thanx for the tips.

 

 

.Kamelite

Windows 10, Archicad 28

What do you consider ugly in Archicad?

Take the lower images (Archicad on the left).

 

You can turn the background grid off.

You can turn off the reference nodes of the text (on-screen option).

The fills for the walls are different - you can change those.

 

Then I think they would be almost identical.

 

Barry.

 

One of the forum moderators.
Versions 6.5 to 27
i7-10700 @ 2.9Ghz, 32GB ram, GeForce RTX 2060 (6GB), Windows 10
Lenovo Thinkpad - i7-1270P 2.20 GHz, 32GB RAM, Nvidia T550, Windows 11