cancel
Showing results for 
Search instead for 
Did you mean: 
cancel
Showing results for 
Search instead for 
Did you mean: 
Documentation
About Archicad's documenting tools, views, model filtering, layouts, publishing, etc.
SOLVED!

How to show hidden geometry in floor plan?

Rok Benda
Booster

Hallo,

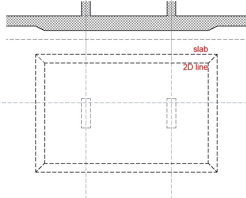
In the drawing of foundation, I want to draw the thickenings of the foundation slab under the columns (with the whole geometry). For the thickenings I've used the slab tool with inclined edges (Custom Edge Settings). Is there any way to show also the geometry of the bevelled and hidden edges in the floor plan?

I know It is possible in 3D document ... It would be wonderfull to have more options to show an object (a-show hidden edges, b-show ceiling projection, c-show wireframe ...)

I just hate to use lines in bim model to explain geometry - it's not bim anymore 😞
Any ideas?

Thanks,
Best regards, Rok


fundation slab.jpg
12 REPLIES 12

If only there was some way to securely bind these elements together. Maybe something like an in place editable group or instance🙄

Apple iMac Intel i9 / macOS Sonoma / AC27UKI (most recent builds.. if they work)
Solution

@Barry Kelly wrote:

I am on eave in a couple of weeks, so I might be able to whip one up as a Christmas/New Year present.


Well not exactly in time for Christmas/New Year, but here it finally is.

I just modified the slab accessory a little to allow for a simple 45° batter.

 

I am sure it can be improved further.

I was unable to get it to detect the slab pens, fills, materials.

I could for a 'basic' slab but not when it is a 'composite' slab.

So all settings are manual (except the plan pen).

 

You just need to copy the attached macro and JPG file into a loaded library, or the embedded library.

The use the Design > Design Extras > Accessories > Slab Accessories to attach it to a slab.

You will need the Goodies add-ons to be installed.

 

The default object settings (pen colours, etc.) may not suit your template.

 

Barry.

 


batter_slab.jpg
One of the forum moderators.
Versions 6.5 to 27
i7-10700 @ 2.9Ghz, 32GB ram, GeForce RTX 2060 (6GB), Windows 10
Lenovo Thinkpad - i7-1270P 2.20 GHz, 32GB RAM, Nvidia T550, Windows 11
Solution
Rok Benda
Booster

Hi Barry,
thank you for a really nice solution.
This should be a standard part of Custom Edge Settings.
Best regards, Rok