cancel
Showing results for 
Search instead for 
Did you mean: 
EN
cancel
Showing results for 
Search instead for 
Did you mean: 
EXPODTL
Contributor

LARGE NUMBER 1 over plan

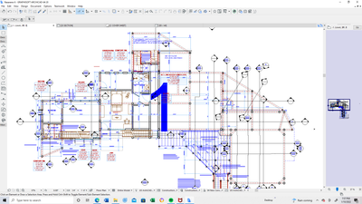
There is a large # 1 over my plan.  I have not been able to remove it.  I can not even find its corners to delete it.  Not sure how it got there, maybe when dimensioning?

Any ideas?  I access plans by Design, Plan Levels.

2022-01-10.png

7 Replies 7
Strawbale23
Expert

@EXPODTL wrote:

There is a large # 1 over my plan.  I have not been able to remove it.  I can not even find its corners to delete it.  Not sure how it got there, maybe when dimensioning?

Any ideas?  I access plans by Design, Plan Levels.

2022-01-10.png

 Thats a new one! 

Have you tried turning off the layers of the other elements on the plan one by one until you find which layer it is on? 


 


AC26
https://www.zendsign.fr/
DGSketcher
Legend

@EXPODTL Open Find & Select then ALT / Click to pick up details of the number. This should give you an idea about what it is e.g. Text, Label, Dimension. You can add other criteria to the Find window to help expose where it is placed etc.

Apple iMac Intel i9 / macOS Sonoma / AC27UKI (most recent builds.. if they work)
Strawbale23
Expert

This is a more intelligent response 🙂

 

But can be tricky if there are several objects superimposed.


AC26
https://www.zendsign.fr/
DGSketcher
Legend

If you have superimposed objects you can [TAB] through them until the one you want is highlighted. 

Apple iMac Intel i9 / macOS Sonoma / AC27UKI (most recent builds.. if they work)
Podolsky
Ace

In View/On-screen View Option select to show textbox handles. That will give you black corners on the edge of textbox - you will quickly then can understand what is what. In Archicad possible to have very wide textbox with only one letter in the middle - in you case textbox possibly can be wider then even your drawing. Check is the magnet on in your arrow tool - magnet let you select the element by just clicking on it. It works with fills and text the same way - no need to search for hotspot. Also you can select tool: text, label, dimension and hotkey Ctrl+A - this way you select all texts, labels or dimensions. In worst case scenario it can be buggy library part, that shows text with the wrong scale.

Strawbale23
Expert

Not whilst pressing alt you cannot


AC26
https://www.zendsign.fr/
Lingwisyer
Guru

Tab through then alt - click, though if you move your mouse slightly, it sometimes goes back to the top selection...

AC22-29 AUS 3200Help Those Help You - Add a Signature
Self-taught, bend it till it breaksCreating a Thread
Win11 | i9 10850K | 64GB | RX6600 Win11 | R5 2600 | 16GB | GTX1660

Still looking?

Browse more topics

Back to forum

See latest solutions

Accepted solutions

Start a new discussion!