Browse
Forum
Installation & update
Licensing
Modeling
Libraries & objects
Documentation
Visualization
BIMx
Project data & BIM
Parametric design
Sustainable design
Teamwork & BIMcloud
Collaboration with other software
General discussions
Our Community
Knowledge Base
Installation & update
Licensing
Getting started
Modeling
Libraries & objects
Documentation
Visualization
BIMx
Project data & BIM
Collaboration
Teamwork & BIMcloud
Our Community
MEP
Building Together
Insights
Challenges
ArchiPET challenge
IGNITE 2025
Archicad In Your Pocket
AI Visualizer Challenge
Your Best Design Option
Flex Your BIMx
Parametric Object Factory
My Graphi Story
One Override to Rule Them All
Snow Globe Challenge
Building Together Challenge 2021
AI Solutions
Forum
Blog
Insiders
Podcast
Creator Spotlight
Webinars
Wishlist
Roadmap
Magyar Felhasználói HUB
Fórum
Graphisoft Insights
ArchiPET
Graphisoft Beta Program
Developer Hub
Archicad C++ API
GDL
BIMx API
BIMcloud API
Archicad Python API
Developer Insights
Knowledge Base
Product Help
All
Category
Board
Articles
Users
Turn on suggestions
Auto-suggest helps you quickly narrow down your search results by suggesting possible matches as you type.
Showing results for
Search instead for
Do you mean
Search
English
Deutsch
Français
日本
Português
EN
Sign In
All
Category
Board
Articles
Users
Turn on suggestions
Auto-suggest helps you quickly narrow down your search results by suggesting possible matches as you type.
Showing results for
Search instead for
Do you mean
English
:
Forum
:
Documentation
:
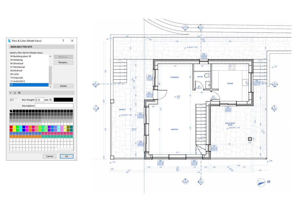
Pen sets in AC 24 templates, INT, SPA
Ignacio Azpiazu
Options
Mark as New
Bookmark
Subscribe
Subscribe to RSS Feed
Permalink
Print
Report Inappropriate Content
2021-10-02
08:49 PM
- edited
2021-10-03
03:11 AM
Pen sets in AC 24 templates, INT, SPA
2021-10-02
08:49 PM
«
Message Listing
«
Previous Topic
Next Topic
»
2 Replies
2
Ignacio Azpiazu
Options
Mark as New
Bookmark
Subscribe
Subscribe to RSS Feed
Permalink
Print
Report Inappropriate Content
2021-10-02
08:49 PM
- edited
2021-10-03
03:11 AM
Pen sets in AC 24 templates, INT, SPA
2021-10-02
08:49 PM
DGSketcher
Options
Mark as New
Bookmark
Subscribe
Subscribe to RSS Feed
Permalink
Print
Report Inappropriate Content
2021-10-02
11:43 PM
2021-10-02
11:43 PM
Vasileios S_
Options
Mark as New
Bookmark
Subscribe
Subscribe to RSS Feed
Permalink
Print
Report Inappropriate Content
2021-10-05
08:23 AM
2021-10-05
08:23 AM
Still looking?
Browse more topics
Back to forum
See latest solutions
Accepted solutions
Start a new discussion!
Create new topic
Suggested topics
Archicad 29 Library organized two different ways in Archicad template vs. custom template?
theme-lib.general.in
Libraries & objects
AC27 - MEP - locked setting of a pipe fitting
theme-lib.general.in
Modeling
Update — FloorPlan6 is now on GitHub (open-source, AGPL-3.0)
theme-lib.general.in
Parametric design
FloorPlan6 — open-source apartment layout generator looking for contributors
theme-lib.general.in
Parametric design
Issues locating .GSM and .XML objects in Tool Settings after import
theme-lib.general.in
Libraries & objects