cancel
Showing results for 
Search instead for 
Did you mean: 
cancel
Showing results for 
Search instead for 
Did you mean: 
Documentation
About Archicad's documenting tools, views, model filtering, layouts, publishing, etc.

Stair Break line and display of stair in sections

Anonymous
Not applicable
Hi Forum,

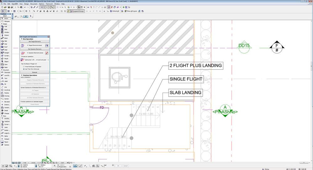
I have been using ArchiCAD since version 9 both as a student and as a professional and am currently working in Version 18 using Teamwork. We are working on a multi-story building and have moderately complex stair cores running between 3-5 stories. From the basement to ground floor we have 3 flights with 2 180 landings so have constructed them using the stairmaker tool as 1 flight + 1 slab landing + a 2 flight stair with integral landing. I have found that if I have the stair with the 2 flights and integral landing set to not display 2D above the stair break line it is having an adverse and unexpected effect in section. If the section line cuts through the visible 2D symbol then all is fine. If on the other hand the section line cuts through the non visible portion of the 2D symbol and the visible depth of the section also only falls in the non visible portion of the 2D symbol then the stair does not display in the section. I discovered this as I am using zero depth section lines to setup details. Has anyone else experienced this as I have searched the forums but it is a hard topic to search on.

Section.jpg
0 REPLIES 0