cancel
Showing results for 
Search instead for 
Did you mean: 
cancel
Showing results for 
Search instead for 
Did you mean: 
Documentation
About Archicad's documenting tools, views, model filtering, layouts, publishing, etc.

Views Placed On Layouts creating multiple (dwg numbers)

Anonymous
Not applicable
Hi there,

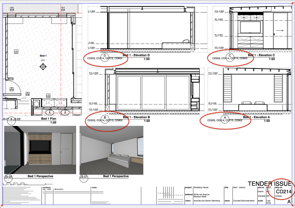
I have placed 4 interior elevation views on one single layout with the Drawing No. CD214.

But for some reason the back reference (or dwg numbers) of each IE View is displaying multiple layout Drawing numbers.

I know I can manually edit this, but I want to keep them live from the model, hence what might be causing this?

See attached screenshot.

Cheers

2014-11-27-Interior Elevation Placement on Layouts.png
3 REPLIES 3
Anonymous
Not applicable
I believe the title is back referencing all sheets where the int elevation marker is visible, try turning off the marker / layer in other views
Link
Graphisoft Partner
Graphisoft Partner
What Scott replied with is entirely correct, but it is listing them all because you have it selected that way. When you hit the back reference button, you can select the specific back references to list instead of all of them. So if turning off the marker visibility is not an option because you want to see the markers on multiple plans, then selecting specific back references is the way to go.

Cheers,
Link.
Anonymous
Not applicable
That solves it!

Thanks Scott and Link