Skilled ArchiCAD Drafting Services
Hello ArchiCAD fellows
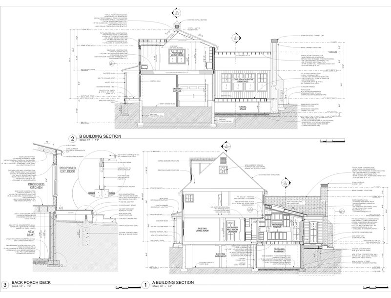
I’m a Bilingual Architectural Designer with 20+ years of ArchiCAD proficiency, Currently seeking remote collaboration opportunity.
I have 7+ Years experience in US High End residential construction; Strong background in renovations and additions, multi-family, ADU, mixed-use, commercial, Hospitality and industrial projects.
I’m open to any type of work from 2D drafting to more complex modeling and design tasks.
Experienced with Teamwork Collaboration
Hotlinked modules
Revision/issue management
Template creation
Strong visual and technical skills, I am capable of researching, preparing, developing, and producing comprehensive construction documents and system specifications.
I’m also able to pick up an ongoing project at any stage of the design process.
Should you require further information, please don’t hesitate to contact me. I would be happy to schedule a virtual meeting and discuss how I can assist with your projects.





