cancel
Showing results for 
Search instead for 
Did you mean: 
cancel
Showing results for 
Search instead for 
Did you mean: 

Navigating in the Project

GRAPHISOFT
Graphisoft
Graphisoft

When talking about navigation, we need to address three different things:

For practice purposes, open an Archicad Sample Project.

How to open the Sample Project

Launch Archicad and open the Sample Project by following these steps:

  • Launch Archicad
  • Hit Browse... in the Start Archicad 23 window
wp-content_uploads_2019_10_ACE_Ch01_M03_StartupDialogEmpty.png
  • Find the previously downloaded Sample Project on your computer
wp-content_uploads_2019_10_ACE_Ch01_M03_browse_open.png
  • Hit Open
  • Select Read elements directly from archive option and hit Open again
wp-content_uploads_2019_10_ACE_Ch01_M03_ReadElements.png

Navigation in the Project

The Structure of the Project

To be able to navigate in your Archicad Project, first, you have to understand its structure.

As mentioned in What is BIM? and in this article, the digital model (BIM) of the building consists of the digital construction elements and the metadata assigned to the elements. In Archicad, we can view this complex database in many ways. We can view and work on the

  • floor plans of building stories
  • sections
  • elevations and interior elevations
  • details
  • 3D (perspective or axonometric)
  • data schedules

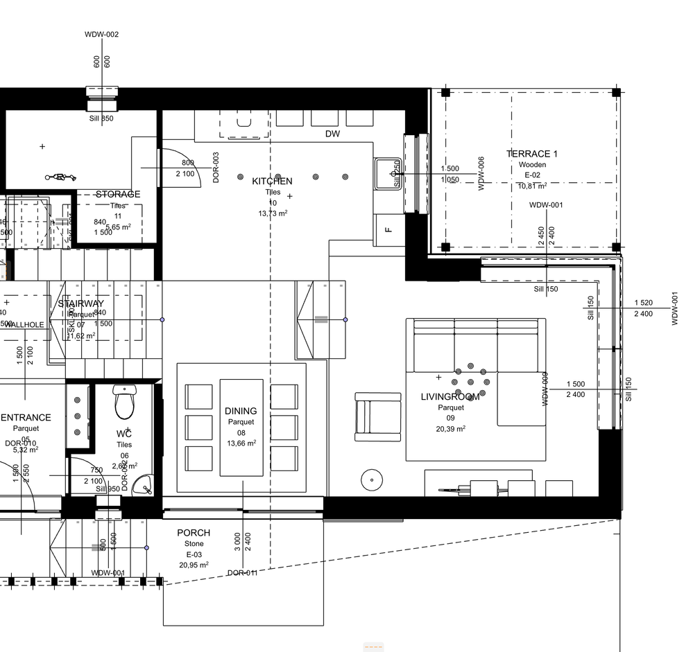
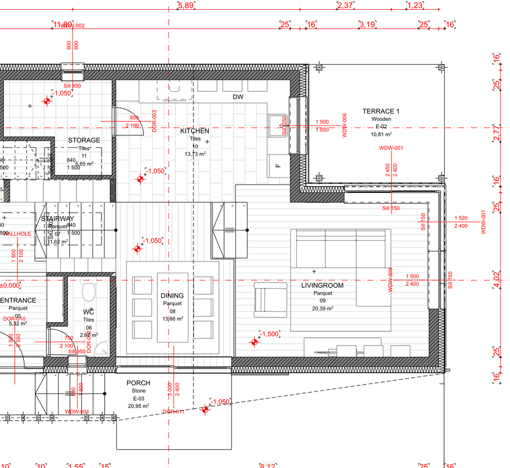
We call these viewpoints. The content we see in these viewpoints is derived from the same 3D model. We have the flexibility to define what elements are shown and what elements are hidden, and in what way we want to display the elements that are shown. Once we have set up these, we have defined a view. We can create multiple views of the same viewpoint. In the example below the viewpoint is the plan of the ground floor:

We usually start working in viewpoints, then we go on and define views.

wp-content_uploads_2019_10_ACE_Ch01_M03_project_structure.png

Viewpoints are organized in the Project Map, and views are organized in the View Map. The structure of the project can be best seen in the Navigator.

 

wp-content_uploads_2016_06_Info_18x18.png
NOTE: Yo can learn about the Navigator more in-depth by checking Archicad Basic Concepts - The Navigator

 

The Pop-Up Navigator and the Navigator

You can see two images below showing how the Project Map and the View Map look like in Navigator:

wp-content_uploads_2019_10_ACE_Ch01_M03_ProjectMap.pngwp-content_uploads_2019_10_ACE_Ch01_M03_ViewMap.png
         Project Map                   View Map


The Navigator is hidden by default in Archicad to be able to have the largest possible area dedicated to design. Whenever you want to go to another view or viewpoint, you can select the desired area in the Pop-Up Navigator.

wp-content_uploads_2019_10_ACE_Ch01_M06_3d-navigator.gif

If you want Navigator to be open continuously, you can keep it open. There are two ways to turn it on (and off):

  • From Pop-up Navigator
  • From Window Menu

To navigate the project, you need to select the viewpoint or the view in the Pop-Up Navigator or the Navigator and double-click its name.

The name of the current view or viewpoint is in bold in Navigator. The content of the selected view or viewpoint is shown in one of the tabs in the main window of Archicad.

Tabs and the Tab Bar

In the Archicad workspace, you can have multiple views or viewpoints open at the same time. They are organized by type under tabs. You can show one view or viewpoint of a type at a time under one tab.

wp-content_uploads_2019_10_ACE_Ch01_M03_tabs_navigator.png

You can switch between the tabs on the Tab Bar like in web browsers. You can close them and can re-open them any time by double-clicking the corresponding item in the Navigator.
As of Archicad 23, the tabs have a preview that appears when you hover over the tab. This feature helps you select which tab's content you want to switch to.

The Tab Overview function in the upper left corner of the main window also helps you to have a quick look at the currently open tabs and their content:

wp-content_uploads_2019_10_ACE_Ch01_M03_tab_overview.png

Didn't find the answer?

Check other topics in this Forum

Back to Forum

Read the latest accepted solutions!

Accepted Solutions