cancel
Showing results for 
Search instead for 
Did you mean: 
EN
cancel
Showing results for 
Search instead for 
Did you mean: 
Anonymous
Not applicable

Bug with dialog boxes into AC12

Hello all,

So here is the problem :

We change our Archicad last week (AC10 -> AC12) installation was ok, no problem, and i had no problem neither on AC10.

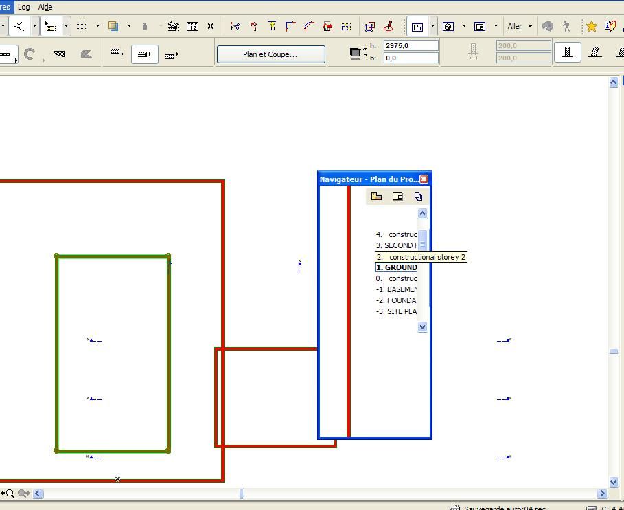
Now, with AC12, (up to date) i got some graphic errors, in 2D or in 3D, with dialog boxes wich becomes transparent, and just some infos appears, (exemple in the attached images)

It happens sometimes, i select a wall, i deselect it, and then, i got this error, ll the dialog boxes IN the drawing area, becomes transparent, or with weird appearance...

My config :

Laptop HP 8710w, CPU = Intel core 2duo T7700, GPU = quadro FX 1600M
2Go memory.
on Windows XP pro 32bit

My drivers are the last from the Nvidia website... no problem on other softwares,


If you got an idea? or a tip to solve my problem... THANK YOU !

CU

bug archi2.JPG
0 Replies 0

Still looking?

Browse more topics

Back to forum

See latest solutions

Accepted solutions

Start a new discussion!