cancel
Showing results for 
Search instead for 
Did you mean: 
EN
cancel
Showing results for 
Search instead for 
Did you mean: 
KOAN
Contributor

Door Panel Only Shows on One Side in Elevation

Hi All,

 

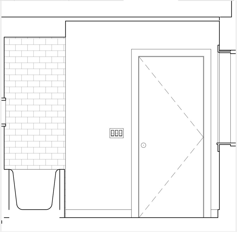
I'm having a problem with the AC26\ door D1 26... I'm using the single panel configuration for the leaf and the panel, rails, and stiles only show up on the exterior of the door.  I've attached a couple of screen shots of the exterior and interior of the door showing the problem.

 

I did see a previous thread on this dating back to AC18.  The solution was to change the material fill of the panel of the door, but I don't see that we have that option in AC26, unless I'm missing it?

 

Any help would be much appreciated!


How The Interior of the Door Looks in Elevation.jpgHow the Exterior of the Door Looks in Elevation.jpg
AC 26 USA
MAC OS 12.6.7 | R9 M390 2GB | 4Ghz Intel Core i7 | 32GB RAM
8 Replies 8
Laszlo Nagy
Community Admin
Community Admin

Could it be that the MVO setting that controls the Detail Level of Doors in Sections/Elevations is different for the two Elevations, causing the Door to be displayed at different levels of details?

MVO-DoorDetailLevel.png

Loving Archicad since 1995 - Find Archicad Tips at x.com/laszlonagy
AMD Ryzen9 5900X CPU, 64 GB RAM 3600 MHz, Nvidia GTX 1060 6GB, 500 GB NVMe SSD
2x28" (2560x1440), Windows 10 PRO ENG, Ac20-Ac29
Barry Kelly
Moderator

When you view the door in 3D, does it have a panel on both sides?

If so, then there is a difference in the settings for your two elevations as Laszlo suggests.

 

If not then it seems you have a door leaf that has a panel on one side only.

 

Barry.

One of the forum moderators.
Versions 6.5 to 27
i7-10700 @ 2.9Ghz, 32GB ram, GeForce RTX 2060 (6GB), Windows 10
Lenovo Thinkpad - i7-1270P 2.20 GHz, 32GB RAM, Nvidia T550, Windows 11
KOAN
Contributor

Thanks but no, I have the detail level set to full as you've shown.

AC 26 USA
MAC OS 12.6.7 | R9 M390 2GB | 4Ghz Intel Core i7 | 32GB RAM
KOAN
Contributor

Yes the frame only appears on the outside of the door in 3d.  I am using the door D1 26 from the embedded library.  Is there an option somewhere to add a panel to both sides that I'm missing?  It seems that perhaps there is a bit of a disconnect here between the way this object is made and the way a panel door would be constructed in real life (and consequently, how I need it to be represented).  But maybe I'm just using the wrong door?


D1 26 Door Leaf and Handle Settings.jpgD1 26 Frame and Leaf Settings.jpg
AC 26 USA
MAC OS 12.6.7 | R9 M390 2GB | 4Ghz Intel Core i7 | 32GB RAM
Barry Kelly
Moderator

I believe 'D1 26' is from the USA library.

I only have the AUS library and the panels are definitely 2 sided that I looked at.

The USA and AUS/INT libraries are quite different in their settings.

 

You could try a different door leaf, or someone with the USA library will have to help you out.

 

Barry.

One of the forum moderators.
Versions 6.5 to 27
i7-10700 @ 2.9Ghz, 32GB ram, GeForce RTX 2060 (6GB), Windows 10
Lenovo Thinkpad - i7-1270P 2.20 GHz, 32GB RAM, Nvidia T550, Windows 11
Barry Kelly
Moderator

I couldn't find 'D1 26' but I could download the pocket door from the USA library.

There definitely seems to be a problem with that 'Standard 1 panel' door leaf.

All the others seem to be 2 sided, but not that one.

Excuse the materials in this image.

 

BarryKelly_0-1681785087492.png

 

You could use the 'No Grill' door leaf and if you don't want glass, change the glass material to match the door frame.

 

Barry.

 

 

One of the forum moderators.
Versions 6.5 to 27
i7-10700 @ 2.9Ghz, 32GB ram, GeForce RTX 2060 (6GB), Windows 10
Lenovo Thinkpad - i7-1270P 2.20 GHz, 32GB RAM, Nvidia T550, Windows 11
KOAN
Contributor

Thanks for looking into it.  I've never seen a door made this way irl so it's a little confusing that it would be made this way by default in the standard US door...

 

Do you (or anyone) know what the best way to get feedback to GS is in a way that they'll notice?  I've got a fairly long list of things that are problematic for US users that seem to be the result of differing building practices and graphic standards between us and Europe.

AC 26 USA
MAC OS 12.6.7 | R9 M390 2GB | 4Ghz Intel Core i7 | 32GB RAM
Barry Kelly
Moderator

I don't think that it is because the door is made that way.

I would suspect bad scripting of that panel, as all the others seem to be double sided.

 

As for reporting issues, the best place is through your local Archicad support.

You can mention them here (in appropriate posts - separate for each topic or search for existing posts) and they may get noticed, but it is best to report directly to the people you buy your license from.

They should then pass it on to Graphisoft HQ if it is something that needs rectifying.

 

Barry.

One of the forum moderators.
Versions 6.5 to 27
i7-10700 @ 2.9Ghz, 32GB ram, GeForce RTX 2060 (6GB), Windows 10
Lenovo Thinkpad - i7-1270P 2.20 GHz, 32GB RAM, Nvidia T550, Windows 11

Didn't find the answer?

Check other topics in this Forum

Back to Forum

Read the latest accepted solutions!

Accepted Solutions

Start a new conversation!