cancel
Showing results for 
Search instead for 
Did you mean: 
EN
cancel
Showing results for 
Search instead for 
Did you mean: 
Tom Krowka
Enthusiast

door frame problem

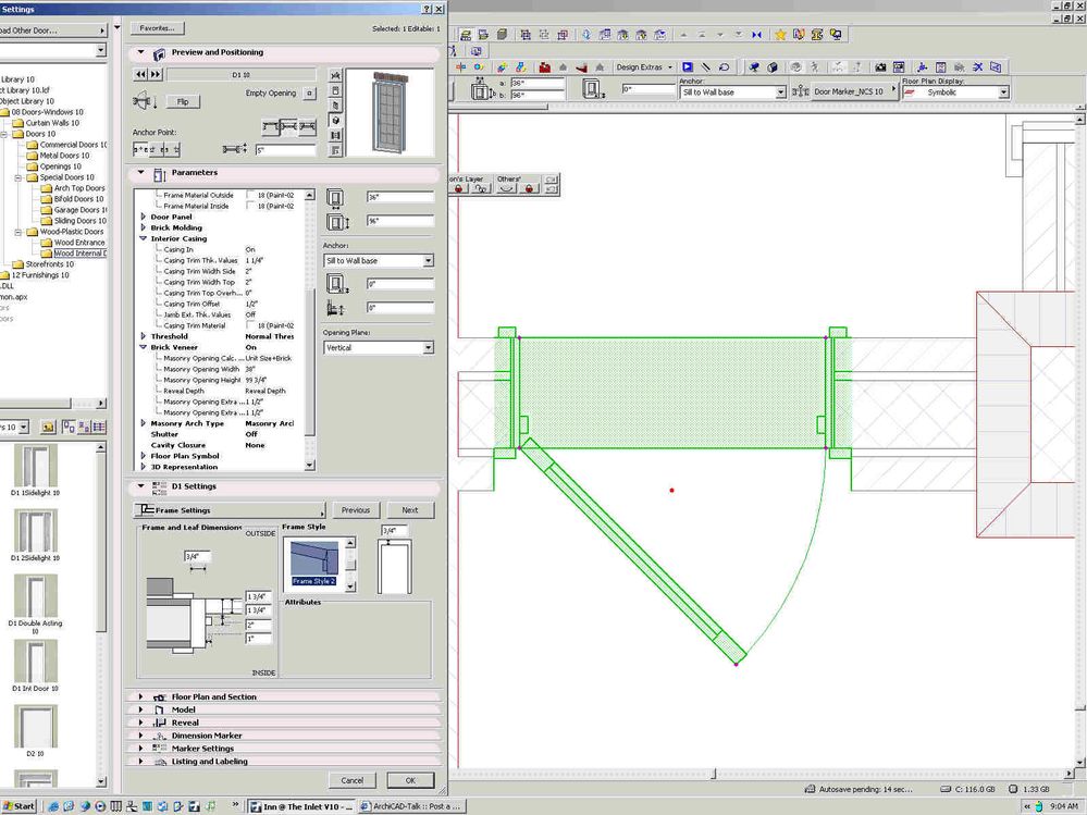
I'm working on a project that has 8 inch block wall, with a brick veneer on each side. I'm attempting to put in a door, with a brick mold on each side. I can get it to show up correctly on one side but not the other. The pic shows the door with a 5 inch reveal on one side, but nothing I do seems to get the reveal on the other side.
Frame size is 8 inches, jamb extension is set to off, but the door automatically add the opposite side brick veneer to dimension to the frame.
I would like to show that opposite side brick mold correctly. Any way to do it?

door problem.jpg
Tom Krowka Architect
Windows 11, AC Version 26
Thomas@wkarchwk.com
www.walshkrowka.com
6 Replies 6
Tom Krowka
Enthusiast
Can anyone help out here, or is this something that ArchiCad can't do????
Tom Krowka Architect
Windows 11, AC Version 26
Thomas@wkarchwk.com
www.walshkrowka.com
Aussie John
Newcomer
Tom wrote:
Can anyone help out here, or is this something that ArchiCad can't do????
Does it work if you use a different library part?
Often there is a setting which makes the frame full width of the door. Maybe there is a similar setting with this door which overwrites the frame dimension
Cheers John
John Hyland : ARINA : www.arina.biz
User ver 4 to 12 - Jumped to v22 - so many options and settings!!!
OSX 10.15.6 [Catalina] : Archicad 22 : 15" MacBook Pro 2019
[/size]
Anonymous
Not applicable
Tom wrote:
Can anyone help out here, or is this something that ArchiCad can't do????
Tom,
No...I don't think it can be done the way you're "logically" trying to do it. This is an atypical door situation...basically you have a door in a wall that is an exterior condition on both sides. Archicad doors and windows, AFAIK, are scripted to respond one way for the interior condition (trim, etc.) and another way(masonry opening ,trim etc.) for the exterior.

Maybe you should try placing an opening in the wall to represent the M.O.'s and then place a separate wall (stud width) with the door into the opening.

Dan K
Tom Krowka
Enthusiast
I guess you are right. I despise the two or three step workarounds however. I like to do it all at once.
Tom Krowka Architect
Windows 11, AC Version 26
Thomas@wkarchwk.com
www.walshkrowka.com
If this is what you are looking for I achieved it with CadImage Door Builder and their Wall Accessory addon.
Gerald Hoffman
“The simplification of anything is always sensational” GKC
Archicad 4.55 - 29-Latest USA
2024 M4 Max MacBook Pro-macOS 15.5 (128GB (16 Core CPU + 40 Core GPU)
Tom Krowka
Enthusiast
That's what I am looking for. What does the add on entail? A separate package for door/windows and another one for walls? Too bad AC won't do it without the add ons.
Tom Krowka Architect
Windows 11, AC Version 26
Thomas@wkarchwk.com
www.walshkrowka.com

Didn't find the answer?

Check other topics in this Forum

Back to Forum

Read the latest accepted solutions!

Accepted Solutions

Start a new conversation!