cancel
Showing results for 
Search instead for 
Did you mean: 
cancel
Showing results for 
Search instead for 
Did you mean: 
Modeling
About Archicad's design tools, element connections, modeling concepts, etc.

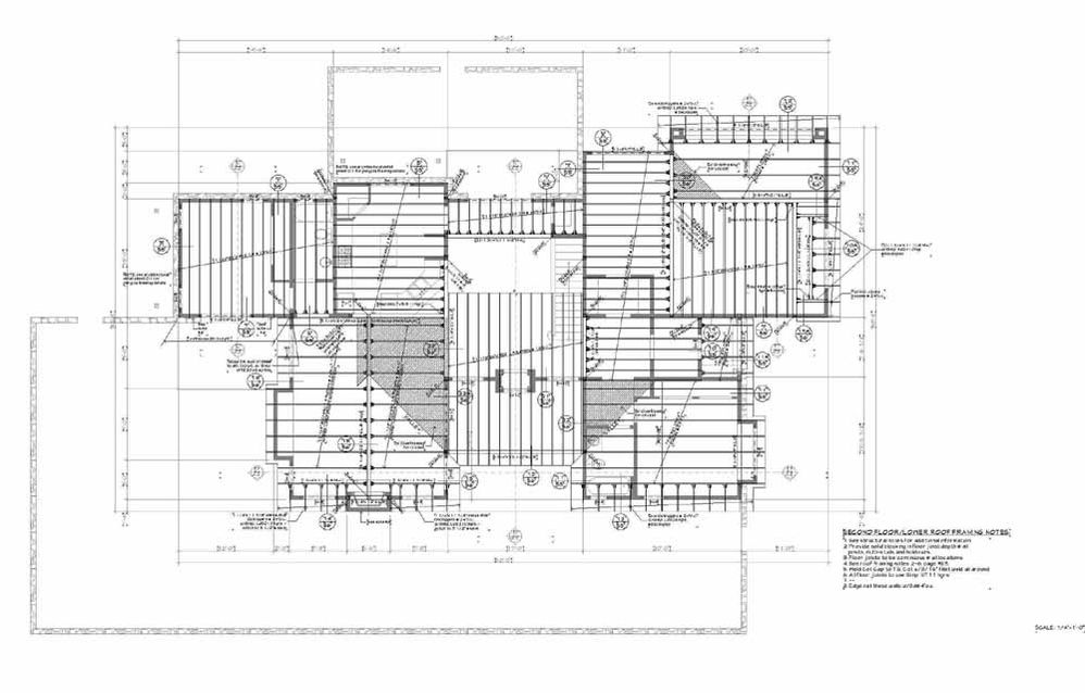
Ceiling Joist Plan

Anonymous
Not applicable
How do you make one?

I am lost.
17 REPLIES 17
TDabney
Enthusiast
Are you asking graphicly? or how do you get roof joists to show on your framing plan? What are you trying to show?

I typically ghost walls etc... underneath and show framing members and notes darker - see attached. EVERYONE does it differently!
Tom
FramTest.jpg
TND Architects P.L.L.C.
macOS 12.7
2021 16" MacBook Pro
Apple M1 Max
ArchiCAD 26/27
Anonymous
Not applicable
TDabney wrote:
...I typically ghost walls etc... underneath and show framing members and notes darker - see attached. EVERYONE does it differently!
Tom
Tom,
Would it be possible for you to upload a PDF of this plan so we can all see it in more detail? It seems to be be nicely organized and detailed...I would love to see it more clearly...we can all benefit from seeing more great examples like this!

Thanks,
Dan K
Anonymous
Not applicable
Dan wrote:
TDabney wrote:
...I typically ghost walls etc... underneath and show framing members and notes darker - see attached. EVERYONE does it differently!
Tom
we can all benefit from seeing more great examples like this!

Thanks,
Dan K
I agree, please show.
Seiss Wagner
Participant
TDabney -

Your joist plan is really quite nice! Would you please share with us the process by which you ghost the floor plan.

I think we could all benefit from your experience.

Seiss
ArchiCad 21 / OS X 10.13.5 /
iMac 3.2GHz i5 - 32GB /AMD Radeon R9 M390 - 2048 MB/
Dual 5K - 27" Displays
__archiben
Booster
1. model your framing members with a specific 'framing pen' (or draft them if you're not into the VB concept!)

2. in your display options, change the doors and windows to "reflected ceiling plan" and save the view.

3. in plotmaker change all of your main drafting pens to a greyscale (or hairline black) and the 'framing pen' make a thicker black by over-riding the pen settings for that drawing (right click the drawing>Drawing Settings...>Attribute Update Rules)

that's just the basics - you'd need to control your layer combinations and would probably already have an RCP display option set up to choose from . . . it's the altering of the pen tables in plotmaker that really makes construction documentation of this kind sing!

HTH
~/archiben
b e n _ f r o s t
b f [a t ] p l a n b a r c h i t e c t u r e [d o t] n z
archicad | sketchup | morpholio | phpp
TDabney
Enthusiast
ArchiBen pretty much described the method I use - thanks for saving me some typing! There are a bunch of other ways to achieve the same look though - I've seen some other templates that use all sorts of complicated .PMK overlays etc... this, (to me) seems like the simplest. I work on mostly residential and small commercial projects - so I don't need 5 million layers, layouts, view sets etc... it gets hard to manage all that if it gets too complicated. My brain is already at max capacity!
Tom

ps - I had some troubles uploading the first image - I had to resize it and try a few times. The PDF worked on the first try. Is watching the file size - and getting as close as possible to the max - the only way to upload the biggest possible attachment?
TND Architects P.L.L.C.
macOS 12.7
2021 16" MacBook Pro
Apple M1 Max
ArchiCAD 26/27
Rick Thompson
Expert
One other thing that maybe useful. There is an object in the truss library called "JOIST Beam" (I guess they wanted to emphasize JOIST... I am not shouting:). I use it. I ID them to the stock lumber size and it makes for a good framing take off. To do it accurately you need to do it like it is actually built, not exactly like the typical framing plan. First place band joist (I id them all 2x10x16 as an example). Then place and multiply for an area. Then I go off to the side (so I can eliminate it in plotmaker), and place a few extra for blocking and header material. If you have a short span that would actually have 2 - 8's cut from one 16' board, then select half of them and delete the ID. Combined with proper displaying and layering (as in other comments) it can be a very quick framing and material list.

I don't change anything in plotmaker, except adjust the box size to cut out the header material and blocking. I set the display for the framing quickviews to "no fills" for the walls, and place a hatched fill over the bearing walls. I actually use a green pen for PT joist and a brown pen for the rest... they prints 2 shades of grey and look great in pdf. You never know when color will be common in printing:)
Rick Thompson
Mac Sonoma AC 26
http://www.thompsonplans.com
Mac M2 studio w/ display
Anonymous
Not applicable
Rick wrote:
One other thing that maybe useful. There is an object in the truss library called "JOIST Beam" (I guess they wanted to emphasize JOIST... I am not shouting:). I use it. I ID them to the stock lumber size and it makes for a good framing take off. To do it accurately you need to do it like it is actually built, not exactly like the typical framing plan. First place band joist (I id them all 2x10x16 as an example). Then place and multiply for an area. Then I go off to the side (so I can eliminate it in plotmaker), and place a few extra for blocking and header material. If you have a short span that would actually have 2 - 8's cut from one 16' board, then select half of them and delete the ID. Combined with proper displaying and layering (as in other comments) it can be a very quick framing and material list.

I don't change anything in plotmaker, except adjust the box size to cut out the header material and blocking. I set the display for the framing quickviews to "no fills" for the walls, and place a hatched fill over the bearing walls. I actually use a green pen for PT joist and a brown pen for the rest... they prints 2 shades of grey and look great in pdf. You never know when color will be common in printing:)

Do you have a pdf file of the color plan?

I would love to see it.
Rick Thompson
Expert
Let me add an excuse:) I sell stock plans. I don't normally need to do "real" framing plans. My plans are not very complicated and all needed structural info is on the main plans. I mostly do these for material take offs.... however, the City of Atlanta is staffed by mentally challenged plan reviews.. it is very sad. I send plans all over the country, and no where else can compare to the redundancy they require for the plans. (To be a licensed builder you take out a business permit... that's it). So, this is geared to please then and help the poor person that has to deal with the city of Atlanta, and not very well noted.. etc.
Rick Thompson
Mac Sonoma AC 26
http://www.thompsonplans.com
Mac M2 studio w/ display