cancel
Showing results for 
Search instead for 
Did you mean: 
cancel
Showing results for 
Search instead for 
Did you mean: 
Modeling
About Archicad's design tools, element connections, modeling concepts, etc.

create stair using selcetion

Anonymous
Not applicable
Does anyone tell me how to use this tool?

look at the help, i drew a fill and a poly line for directon, then select all, click the "tool- create stair using selection" but just wrong.
EY
23 REPLIES 23
Erika Epstein
Enthusiast
It would help if you would post a screenshot of your fill and polyline so we can see what you are attempting.
Erika
Architect, Consultant
MacBook Pro Retina, 15-inch Yosemite 2.8 GHz Intel Core i7 16 GB 1600 MHz DDR3
Mac OSX 10.11.1
AC5-18
Onuma System

"Implementing Successful Building Information Modeling"
Anonymous
Not applicable
here you are.
Link
Graphisoft Partner
Graphisoft Partner
Got a microscope for those images?

Using this tool is relatively simple. Simply draw a fill the shape of your proposed stairs, use the line and/or arc tool to define a path of travel (not the polyline!) within the fill, select them all then use the command from the Tools menu to start creating your stair object.

Easy as pie!

Cheers,
Link.
Anonymous
Not applicable
The problem i got is when i put the riser 180 run 250, but it does not listen to me and change back something like 288, 169, can you tell me why, the other thing is if i want the landing longer, how do i draw?

EY
Link
Graphisoft Partner
Graphisoft Partner
Use the little locks next to each measurement, to lock them in so they won't keep changing on you.

Cheers,
Link.
Anonymous
Not applicable
Yes, i am trying lock with the height at 3200, and run 250, and also i want to have different landing at each level, because different building height. The other thing is if the shape like ㄈ, each side has a little curve, and i want to keep the left hand side for landing (none steps) how do i achieve it?

EY
Anonymous
Not applicable
here are two stairs
one is 2100x2100, 250 run 200 rise,
the other one is keeping left hand side as a landing


EY
stairs.jpg
Erika Epstein
Enthusiast
You could always break each run in to separate stairs and then create a landing.
In this case the (2) runs look like they are mirror images so you would only have to create one custom stair and use it twice.
Erika
Architect, Consultant
MacBook Pro Retina, 15-inch Yosemite 2.8 GHz Intel Core i7 16 GB 1600 MHz DDR3
Mac OSX 10.11.1
AC5-18
Onuma System

"Implementing Successful Building Information Modeling"
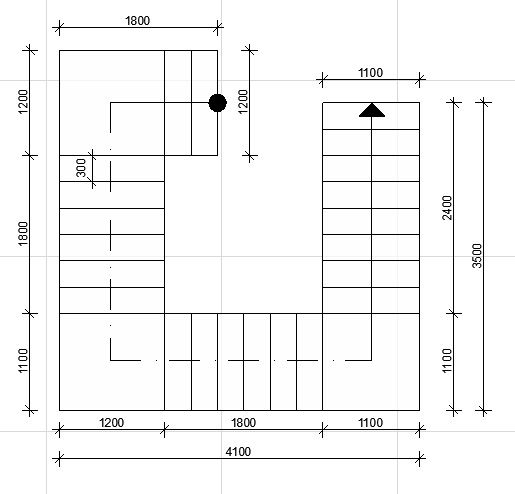
Anonymous
Not applicable
Hi!
I need to create a stair like in screenshot (dimension unit - mm).
I have 3900 mm total rise height, therefore it is possible to create a stair with 150 mm thread height and 26 risers. But I can't make it with this tool.
Can anyone help me?
1.jpg