Display malfunction of Graphisoft ID dashboard
Learn more
cancel
Showing results for 
Search instead for 
Did you mean: 
EN
cancel
Showing results for 
Search instead for 
Did you mean: 
Lubangakene Brian
Contributor

Interactive Schedules

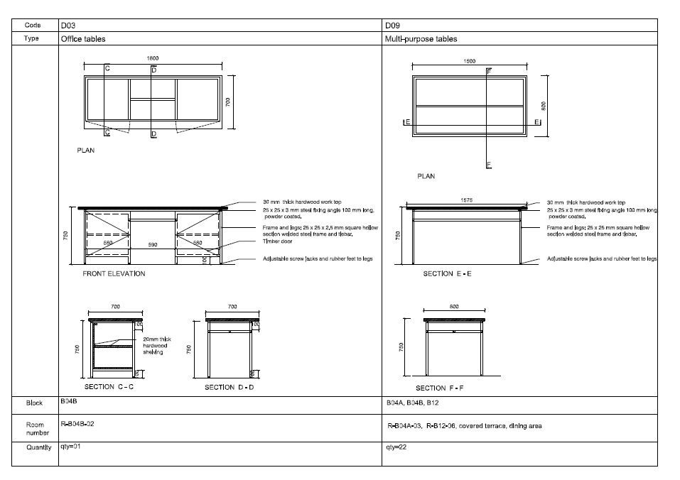
Hello All, My Boss is obsesses with the Shedule format i have attached below. (He wants exact Replica) , i am used to using interactive schedule but whenever i have to achieve this i have to copy and paste in another worksheet and its prone to errors, Whats the best way i can achieve this within the interactive schedule itself

furniture schedule.JPG

 

1 Solution

Accepted Solutions
Patrick Hayes
Booster

You may need to do a bit of a patchwork on your layout sheet. It would be simple enough generating an interactive schedule that captures all of the written information and quantity etc. However detailing in a preview window in the interactive schedule is pretty fraught. essentially if you had 5 D03's, the schedule randomly picks 1 of those to show as a preview, so if you annotate within that, and then delete that 1 instance, your annotation goes with it, even though there would still be 4 left over and being scheduled. (Hope that makes sense). It is also difficult to work out which instance the preview is of (of the 5 in the example). 

Potentially a smarter way would be to use worksheets for your plan, section, elevation detailing and save the views ie "D03" and place them in the layout. to get the size of your schedule cell correct for the detail, you could select a preview parameter that doesn't show anything up and then add hotspots in that to keep it's size so that you can still use the automatic resize rows and columns. 

It's not perfect but may be a safe way of protecting your detailing data as well as being able to copy any 2D work across to another project to use.

Don't ask too much of your schedules, while they have come a long way the formatting is still pretty limited and trying to annotate within preview cells has always been a dangerous way to document in terms of potential data loss. 

Here's an image of how you would use the layout - red is how you are using the interactive schedule and the yellow is the placed drawings of your details onto the layout sheet. This gets the best of both worlds - having the finesse in your graphics of detailing while still drawing the information out of your model for the written parameters

PatrickHayes_0-1648689593437.png

 

Associate | Law Architects
Melbourne, Australia

Go to post

2 Replies 2
DGSketcher
Legend

@Lubangakene Brian I don’t see an easy solution to that task. You could configure the schedule with the required framing and notes e.g. room number etc and make space for the illustration. The illustration can be from a Worksheet per object and would then be overlaid on a Layout sheet with the Schedule. This may help if you are repeating the same furniture illustration on different Layouts. 

Apple iMac Intel i9 / macOS Sonoma / AC27UKI (most recent builds.. if they work)
Patrick Hayes
Booster

You may need to do a bit of a patchwork on your layout sheet. It would be simple enough generating an interactive schedule that captures all of the written information and quantity etc. However detailing in a preview window in the interactive schedule is pretty fraught. essentially if you had 5 D03's, the schedule randomly picks 1 of those to show as a preview, so if you annotate within that, and then delete that 1 instance, your annotation goes with it, even though there would still be 4 left over and being scheduled. (Hope that makes sense). It is also difficult to work out which instance the preview is of (of the 5 in the example). 

Potentially a smarter way would be to use worksheets for your plan, section, elevation detailing and save the views ie "D03" and place them in the layout. to get the size of your schedule cell correct for the detail, you could select a preview parameter that doesn't show anything up and then add hotspots in that to keep it's size so that you can still use the automatic resize rows and columns. 

It's not perfect but may be a safe way of protecting your detailing data as well as being able to copy any 2D work across to another project to use.

Don't ask too much of your schedules, while they have come a long way the formatting is still pretty limited and trying to annotate within preview cells has always been a dangerous way to document in terms of potential data loss. 

Here's an image of how you would use the layout - red is how you are using the interactive schedule and the yellow is the placed drawings of your details onto the layout sheet. This gets the best of both worlds - having the finesse in your graphics of detailing while still drawing the information out of your model for the written parameters

PatrickHayes_0-1648689593437.png

 

Associate | Law Architects
Melbourne, Australia

Didn't find the answer?

Check other topics in this Forum

Back to Forum

Read the latest accepted solutions!

Accepted Solutions

Start a new conversation!