cancel
Showing results for 
Search instead for 
Did you mean: 
cancel
Showing results for 
Search instead for 
Did you mean: 
Visualization
About built-in and 3rd party, classic and real-time rendering solutions, settings, workflows, etc.

The last step of my stair doesn't show up in 3D

nhcw
Newcomer

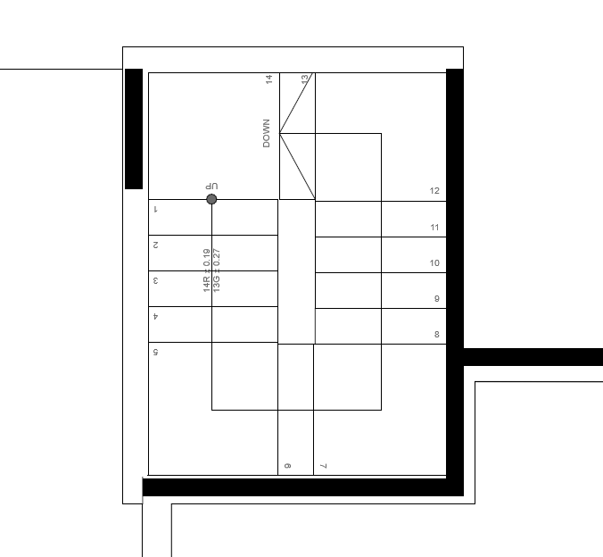
I've drawn a stair but when I go to the 3D view the last step doesn't show up.


image.pngimage.png

2 REPLIES 2
Barry Kelly
Moderator

Your 14th tread (landing) seems to be overlapping or touching the 1st tread.

Your 1st tread also looks like it has been cut off.

 

This can not happen with stairs.

Usually the entire star would be invalid.

 

You might need to split this stair into 2 separate stairs.

 

Barry.

One of the forum moderators.
Versions 6.5 to 27
i7-10700 @ 2.9Ghz, 32GB ram, GeForce RTX 2060 (6GB), Windows 10
Lenovo Thinkpad - i7-1270P 2.20 GHz, 32GB RAM, Nvidia T550, Windows 11
Laszlo Nagy
Community Admin
Community Admin

I am wondering if your Stair gets generated if you select the Stair, go to its Settings Dialog, and in the Geometry and Positioning panel of the Stair page, you set the "End with Riser/Tread" toggle to "End with Tread". As I see from the Stair Baseline (thick blue line in 3D), it is currently set to "End with Riser".

Loving Archicad since 1995 - Find Archicad Tips at x.com/laszlonagy
AMD Ryzen9 5900X CPU, 64 GB RAM 3600 MHz, Nvidia GTX 1060 6GB, 500 GB NVMe SSD
2x28" (2560x1440), Windows 10 PRO ENG, Ac20-Ac29