cancel
Showing results for 
Search instead for 
Did you mean: 
EN
cancel
Showing results for 
Search instead for 
Did you mean: 
Nc2rnL
Contributor

ArchiCAD 24 wiped out Elevation & Section Views

ArchiCAD wiped out Elevation & Section Views. This happened when I create a detail blow-up from elevation and create a view on view map. Then, I found all of my elevations and sections are gone but the markers are on plan. Can this be recovered? Thanks for the help!

 

Operating system used: Windows 11

AC28 PH / LEGIONPRO5 / 13th Gen Intel(R) Core (TM) i7-13700HX 2.10 GHz / 32.0 GB RAM
Setup info provided by author
5 Replies 5
Barry Kelly
Moderator

So in your Project Map, you have no sections or elevation view points?

If so, you can re-create the views in the View Map.

Maybe you just accidentally deleted them from the View Map?

Screen images of Project Map and View Map will help

 

Barry.

 

One of the forum moderators.
Versions 6.5 to 27
i7-10700 @ 2.9Ghz, 32GB ram, GeForce RTX 2060 (6GB), Windows 10
Lenovo Thinkpad - i7-1270P 2.20 GHz, 32GB RAM, Nvidia T550, Windows 11
Nc2rnL
Contributor

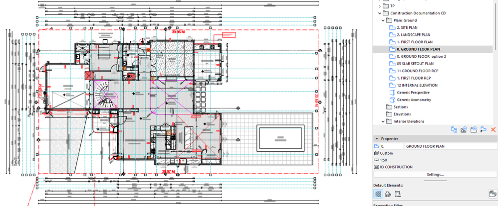
Hi Barry, thanks for the response. Yes it happened when I placed the detail marker on one elevation and noticed every elevations and sections I did before was gone. But the elevation/section marker is still on plan. I am confident I did not delete the elevations and sections. Hope this screenshots can help. Thanks, Barry.

Nc2rnL_0-1762238365133.png

Nc2rnL_1-1762238389289.png

Nc2rnL_2-1762238401854.png

 

 

 

AC28 PH / LEGIONPRO5 / 13th Gen Intel(R) Core (TM) i7-13700HX 2.10 GHz / 32.0 GB RAM
Barry Kelly
Moderator

Strange.

They definitely don't seem to be in the list.

What does it show when you select one on plan and open the settings.

 

BarryKelly_0-1762242753272.png

 

Barry.

One of the forum moderators.
Versions 6.5 to 27
i7-10700 @ 2.9Ghz, 32GB ram, GeForce RTX 2060 (6GB), Windows 10
Lenovo Thinkpad - i7-1270P 2.20 GHz, 32GB RAM, Nvidia T550, Windows 11
Nc2rnL
Contributor

Hi, Barry. I've selected the settings of one of the elevation markers. I had an old file, and I've attached a screen recording of the strange happening of wiping the elevations and sections. Have a look into it. Thanks! 
https://drive.google.com/file/d/159rXTmLrwyhpksW089i4Q9NINVf2PM4w/view?usp=drive_link

 

Nc2rnL_0-1762290594904.png

 

AC28 PH / LEGIONPRO5 / 13th Gen Intel(R) Core (TM) i7-13700HX 2.10 GHz / 32.0 GB RAM
Barry Kelly
Moderator

That is strange indeed.

You are using version 24 but your signature says 28.

Can you try a newer version?

You can still load just the old 24 libraries, no need to change.

 

You won't get support technical for 24 anymore.

It will be a case of investigation.

 

First check that 24 has the latest hotfix installed.

It should be builld 7000 and there is a security update for Windows machines as well.

I did see a similar issue was fixed in build 7000.

 

BarryKelly_0-1762302586513.png

 

 

Save a copy of that file and open it with the 'open & repair' option.

Try opening in a newer version (with open & repair) and see if the elevations come back.

 

Try to do the same creation of a detail in a newer version and see if the same thing happens.

 

Barry.

One of the forum moderators.
Versions 6.5 to 27
i7-10700 @ 2.9Ghz, 32GB ram, GeForce RTX 2060 (6GB), Windows 10
Lenovo Thinkpad - i7-1270P 2.20 GHz, 32GB RAM, Nvidia T550, Windows 11

Still looking?

Browse more topics

Back to forum

See latest solutions

Accepted solutions

Start a new discussion!