cancel
Showing results for 
Search instead for 
Did you mean: 
EN
cancel
Showing results for 
Search instead for 
Did you mean: 
Heftor
Enthusiast

Grid Line Head Symbol Randomly Changes to Double-Circle

Hi everyone,

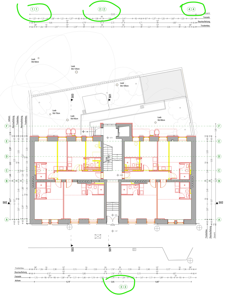
We're experiencing an intermittent and puzzling issue with our Grid Lines. Occasionally, and seemingly at random, the grid head symbol changes from our custom defined style (a simple number in a circle) to a default-looking symbol showing two concentric circles with the same number inside.

Here is our design:

Heftor_0-1762256564436.png


and the glitch version:

 

 

Heftor_0-1762417698975.png

Heftor_1-1762417723189.png

 

  1. The problem corrects itself if I simply open and close the Grid System's Selection Settings without making any changes. Just clicking OK is enough to restore our correct symbol.

  2. The issue was not just on screen; it also appeared in printed PDFs and physical prints, which caused a problem on a recent project delivery

We are both using the same version of Archicad and the same library, so it doesn't seem to be a compatibility issue between our files.

Has anyone else encountered this specific bug?

  • Is there a known trigger for this behavior?

  • Most importantly, is there a permanent fix or a workaround to prevent it from happening in the first place? We are worried about it happening again right before a crucial deadline.

Any insights or shared experiences would be a huge help. Thank you!

 

Operating system used: Windows

3 Replies 3
Laszlo Nagy
Community Admin
Community Admin

It seems like the screenshot of the glitched version did not get included in your post.

Can you try to edit your post and include it? Or, if that is not possible for you, just show it in a new post?

Loving Archicad since 1995 - Find Archicad Tips at x.com/laszlonagy
AMD Ryzen9 5900X CPU, 64 GB RAM 3600 MHz, Nvidia GTX 1060 6GB, 500 GB NVMe SSD
2x28" (2560x1440), Windows 10 PRO ENG, Ac20-Ac29
Heftor
Enthusiast

Thanks for the remark 🙏

Laszlo Nagy
Community Admin
Community Admin

Very strange behavior indeed.

You did not mention which Archicad version you are using, but I would first make sure that I have last Hotfix/Update installed for it. If the bug still persist, I would recommend that you report it to your local Archicad reseller.

Loving Archicad since 1995 - Find Archicad Tips at x.com/laszlonagy
AMD Ryzen9 5900X CPU, 64 GB RAM 3600 MHz, Nvidia GTX 1060 6GB, 500 GB NVMe SSD
2x28" (2560x1440), Windows 10 PRO ENG, Ac20-Ac29

Still looking?

Browse more topics

Back to forum

See latest solutions

Accepted solutions

Start a new discussion!