cancel
Showing results for 
Search instead for 
Did you mean: 
cancel
Showing results for 
Search instead for 
Did you mean: 
Documentation
About Archicad's documenting tools, views, model filtering, layouts, publishing, etc.

STORY LEVEL MARKER - TEXT OPTIONS

hgodhani98
Contributor

HELLO EVERYONE,

 

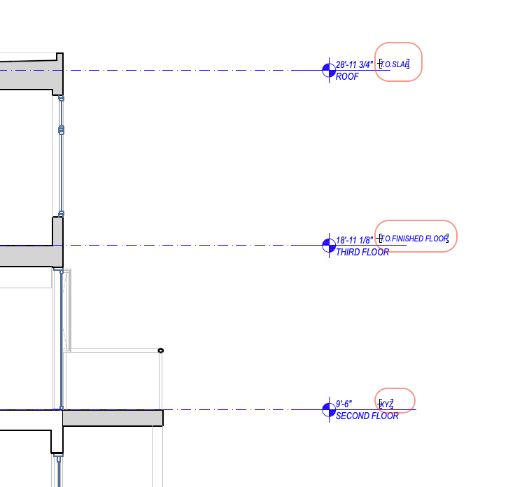
I am trying to use the story level tool in Section settings. I see that there are options to use automated elevation names and also to customize them. What I am trying to achieve is custom next to each floor such as "T.O. SLAB" for basement and "T.O. F F" for the next story. Bu using the custom name tool, it automatically changes the name for every floor and that is not what I want. I attaching a screen shot of what I would like to get if possible. As a current solution I have added a text element next to the story level marker. 

 

Thank You

 

AC25/ 6000 on MacOS Monterey 12.6.3


Screen Shot 2023-03-29 at 12.38.49 PM.png
1 REPLY 1
Miha_M
Advisor

I don't think this is possible with any of the built-in story level markers. They all pull information from the story settings (story name and elevation) and there are no options for adding custom information for independent stories. The only way is to add this information to the story name or adding custom text like you did. 

| Archicad 4.5 - 29
| HP Z840 | 2× E5-2643 v4 | 64 GB RAM | Quadro M5000 | Windows 10 Pro x64
| HP Z4 G4 | W-2245 | 64 GB RAM | RTX A4000 | Windows 11