cancel
Showing results for 
Search instead for 
Did you mean: 
EN
cancel
Showing results for 
Search instead for 
Did you mean: 
gbinojkumar
Participant

dimension text orientation

Hi,

 

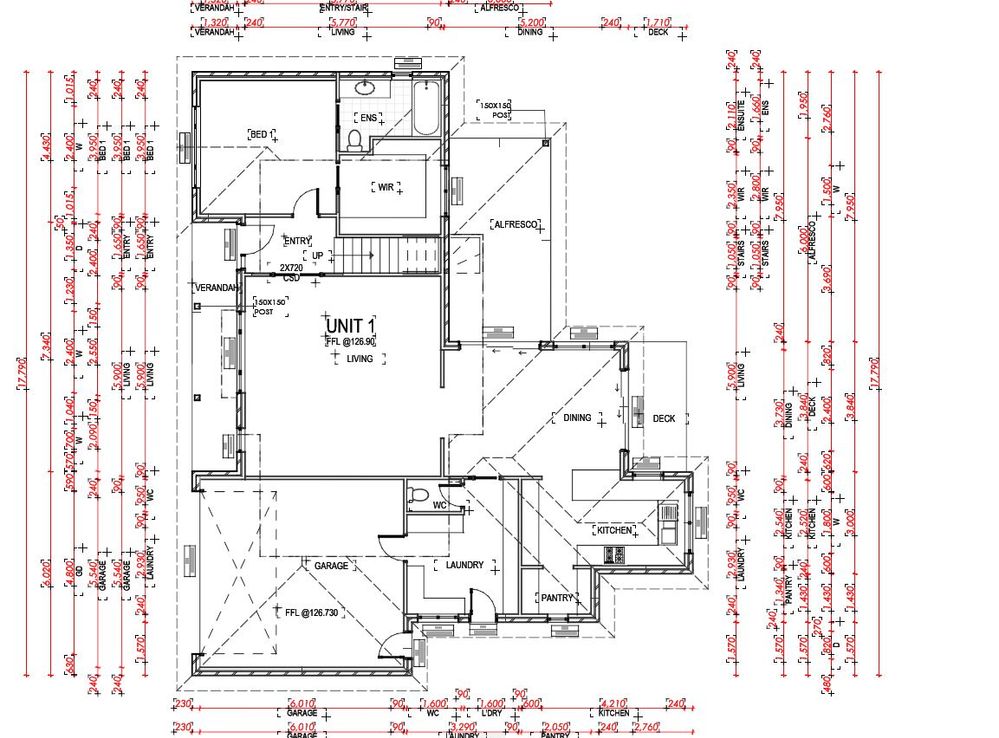
My first line of dimension text is coming in wront orientation other lines are correct. Looks like when doing the internal wall dimensions text orientation is coming wrong. How to make all in the same orientation. please see attached snip

 

Kind Regards

Binoj


DIM.JPG
3 Replies 3
David Maudlin
Rockstar

Binoj:

 

One thing to check is the angle of the dimension string, if it is not exactly 90˚ this can occur. You may need to turn on Working Units > Angle Unit > Decimals to see the exact angle.

 

You should add a Signature to your Profile (click the Profile button near the top of this page) with your ArchiCAD version and operating system (see mine for an example) for more accurate help in this forum.

 

David

David Maudlin / Architect
www.davidmaudlin.com
Digital Architecture
AC29 USA Perpetual • Mac mini M4 Pro OSX15 | 64 gb ram • MacBook Pro M3 Pro OSX14 | 36 gb ram
gbinojkumar
Participant

Hi David,

 

Thanks for your reply. I couldn't find an option to change the angle of dimension string on working units> angle unit>Decimals.  see attached snips. 

 

Also my ground floor storey all dimensions are coming on the correct orientation. This problem is on the first floor level

 

I would update the signature.

 

Kind Regards,

 

Binoj


dim2.JPGdim3.JPG
David Maudlin
Rockstar

Binoj:

 

My suggestion about the Working Units is so you can accurately check, using the Measure command, the angle of the dimension string. If it is a bit off of 90˚ the dimension text will flip over the line.

 

Dimension Angle.png

 David

David Maudlin / Architect
www.davidmaudlin.com
Digital Architecture
AC29 USA Perpetual • Mac mini M4 Pro OSX15 | 64 gb ram • MacBook Pro M3 Pro OSX14 | 36 gb ram

Still looking?

Browse more topics

Back to forum

See latest solutions

Accepted solutions

Start a new discussion!