cancel
Showing results forĀ 
Search instead forĀ 
Did you mean:Ā 
cancel
Showing results forĀ 
Search instead forĀ 
Did you mean:Ā 
Documentation
About Archicad's documenting tools, views, model filtering, layouts, publishing, etc.

dimesion bug?

Anonymous
Not applicable
I have had dimension lines disappear on my project three time now, not all of them just some. What is going on?
17 REPLIES 17
TomWaltz
Participant
Just the witness lines or the whole dimension?
Tom Waltz
Anonymous
Not applicable
The 90% of the whole dimesion line disappears on all stories. Some times if there is a string of lets say 10 dimesions 4 will remain. It has happened on this current project three times already.
Anonymous
Not applicable
Can you show the picture?
Anonymous
Not applicable
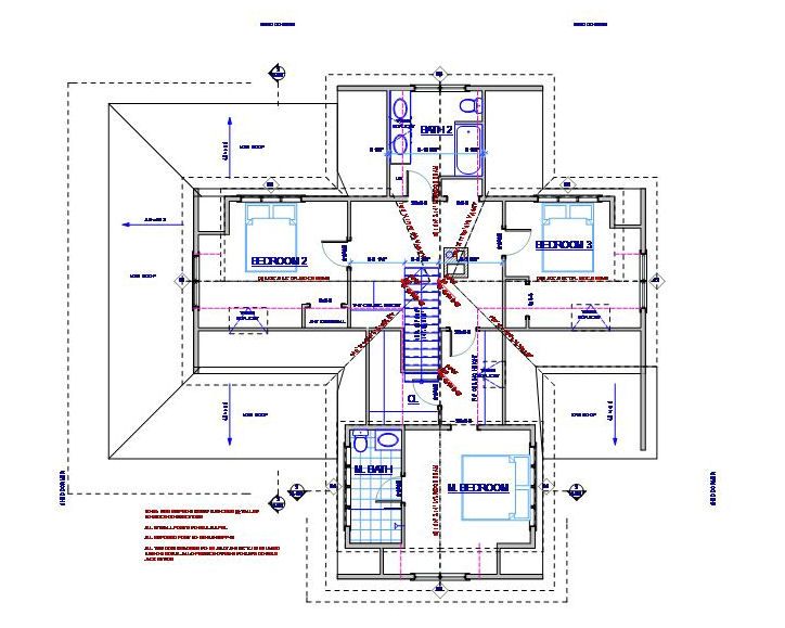
If you look at this floor plan it was fully dimesioned on the exterior showing two strings on each side and the remaining two interior dimensions extended all the way to the exterior walls on each side. The rest just disappeared on each floor. All the layers are on.
06A02 ALUAI-RICHARDS2.jpg
Anonymous
Not applicable
Mo

I had the same problem over a year ago, see http://archicad-talk.graphisoft.com/viewtopic.php?p=36767&highlight=disappearing+dimensions#36767

Don't think I ever found out why...
Anonymous
Not applicable
Mo wrote:
I have had dimension lines disappear on my project three time now, not all of them just some. What is going on?
Just a thought...Are you using modules for your exterior walls? Sometimes when you swap modules in & out the dimensions disappear if they are in the base plan.

Dan K
Djordje
Moderator Emeritus
Is the exact same thing you dimensioned to still in the plan?

All the dimensions of Arhicad are linked to building elements unless you make them static; that means that, even if by mistake, you delete something, the dimension is gone.

So, the modules could be the culprit, as could be something else. Now in 10, the element that you are dimensioning to is higlighted (if your highlight is on). Place the cursor on the dimension line and you will know what is it linked to.
Djordje



ArchiCAD since 4.55 ... 1995
HP Omen
Anonymous
Not applicable
Every thing is still there. Dimensioning is one of the last things I do. There are no modules and it has happened 3 times. Also I am almost sure that I dimensioned everything to the exterior and interior walls and not a slab or roof edge, although I am not sure why that would matter if they were not deleted.
Aussie John
Newcomer
I have had it happen in version 7 or 8 (I think). That's not much help to you is it
Just a thought - are the walls automatic or single storey?
Cheers John
John Hyland : ARINA : www.arina.biz
User ver 4 to 12 - Jumped to v22 - so many options and settings!!!
OSX 10.15.6 [Catalina] : Archicad 22 : 15" MacBook Pro 2019
[/size]