cancel
Showing results for 
Search instead for 
Did you mean: 
EN
cancel
Showing results for 
Search instead for 
Did you mean: 
Anonymous
Not applicable

interior elevation markers misbehaving

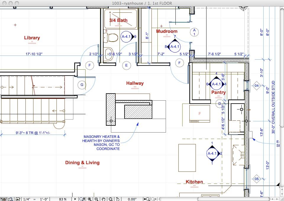
My interior elevations markers are being unruly. Check out the attached image. The marker in the mudroom is behaving properly, with sheet number in the center, and view ID listed externally at the tips of the arrows.

The marker in the kitchen, however, is doing something odd... it shows "1" where view ID "3" should be. Likewise the marker in the pantry is doing it as well, showing "4" where it should say "5". I've checked the sheets it's referring to, and they are as they should be. Interestingly, if I select "individually for each interior elevation" in the setting window for the marker, it does correctly identify the view IDs. I'd just rather not use the built-in IE marker, it doesn't really fit with office graphic standards.

A final confusion is with the marker in the 3/4 bath. Though it has the correct view ID displayed, for some reason the arrow points the opposite direction of where is should. Many of my interior elevation markers are doing this. I checked, and the view it is generating is facing the intended way. I tried rotating the marker itself, and it rotates but snaps back to point the wrong way.

Any thoughts?

eletags.jpg
5 Replies 5
David Maudlin
Rockstar
jfanjoy wrote:
The marker in the kitchen, however, is doing something odd... it shows "1" where view ID "3" should be. Likewise the marker in the pantry is doing it as well, showing "4" where it should say "5". I've checked the sheets it's referring to, and they are as they should be.
On thing to check is that there is not another layout with the mis-numbered interior elevation. I have had this problem when an interior elevation is placed on more than one layout and so is then using the wrong drawing number, as only one layout number can appear with this marker.

HTH,

David
David Maudlin / Architect
www.davidmaudlin.com
Digital Architecture
AC29 USA Perpetual • Mac mini M4 Pro OSX15 | 64 gb ram • MacBook Pro M3 Pro OSX14 | 36 gb ram
Anonymous
Not applicable
Well, I gave it a rest and worked on other parts of the drawing set, figuring I'd get more responses on this one, or figure out some solutions of my own. With the tags pointing at multiple viewpoints, I still get erroneous external text sometimes, but I can work around it by manually inserting custom text that is correct. That of course negates the usefulness of automatic updating, but it makes the drawings look correct for the contractor. On one, i was even able to get it to start displaying the correct info automatically by rearranging the layout of the interior elevations on their layout, as David suggested. On one.

The interior elevation markers that point the opposite direction for a single elevation are still vexing me, though. They only point to the right, regardless of the direction that my elevation is looking. I am using the "IE Marker 1" marker, but the error seems to apply to all the others as well, except for the "Built in IE marker", which is not an industry graphic standard.

So, is anyone else having problems with Interior Elevation markers, or is it just me? I saw in another thread that some people don't even use them, as they "buggy". Do i need to report this to GS? I think IE markers are a handy tool, and I used them all the time in old fashioned 2D cad. I would miss them if they were not useable for AC.
Anonymous
Not applicable
I'm going to leave a comment on this older post, in case any one else comes across these issues. I discovered a workaround to one of the two problems (the shaded arrows pointing the wrong way, or missing) by going into Interior Elevation Selection Settings, setting the Vertical Range to "Detect", and clicking OK. Then, I reset it back to Limited and clicked OK again. This somehow resets the way AC decides how to draw the interior elevation tag. Obviously, this is a minor bug of some sort in the software. I have also upgraded to AC15 since I first made this post, so your mileage may vary with older releases.
Jere
Expert
James, thanks for updating your post. I'm having the same problems as you, where the marker is pointing in the wrong direction. However, I wasn't able to solve the problem using the workaround you suggested.

Could you possibly elaborate on what you do to fix it and what markers you're using?
ArchiCAD 26; Windows 11; Intel i7-10700KF; 64GB RAM, GeForce GTX 3060
Anonymous
Not applicable
jfanjoy wrote:
My interior elevations markers are being unruly. Check out the attached image. The marker in the mudroom is behaving properly, with sheet number in the center, and view ID listed externally at the tips of the arrows.

The marker in the kitchen, however, is doing something odd... it shows "1" where view ID "3" should be. Likewise the marker in the pantry is doing it as well, showing "4" where it should say "5". I've checked the sheets it's referring to, and they are as they should be. Interestingly, if I select "individually for each interior elevation" in the setting window for the marker, it does correctly identify the view IDs. I'd just rather not use the built-in IE marker, it doesn't really fit with office graphic standards.

A final confusion is with the marker in the 3/4 bath. Though it has the correct view ID displayed, for some reason the arrow points the opposite direction of where is should. Many of my interior elevation markers are doing this. I checked, and the view it is generating is facing the intended way. I tried rotating the marker itself, and it rotates but snaps back to point the wrong way.

Any thoughts?
Make sure that when you place your new interior elevation marker, that only the marker and zone layers are on. nothing else. sometimes the marker has trouble associating with its correct zone.

Side note: has anyone come across the interior elevation views wanting to rotate 90 when placed on a layout?

Still looking?

Browse more topics

Back to forum

See latest solutions

Accepted solutions

Start a new discussion!