cancel
Showing results for 
Search instead for 
Did you mean: 
cancel
Showing results for 
Search instead for 
Did you mean: 
Libraries & objects
About Archicad and BIMcloud libraries, their management and migration, objects and other library parts, etc.
SOLVED!

3D window with aluminium sill - not right

Hi I'm struggling with Windows I'm trying to do it right but I cannot figured out.

I need window which is opening inside and have aluminium sill and I get this.

This is obviously not right do you know what i'm doing wrong ?

I set window with sun going outside and opening in side. I could find any setting how can i extend or move the window sill
Skärmavbild 2023-04-25 kl. 08.49.44.jpgSkärmavbild 2023-04-25 kl. 08.51.05.jpgSkärmavbild 2023-04-25 kl. 08.50.44.jpg

Other question what I don't understand

If I open this window in 3D I get this 
Skärmavbild 2023-04-25 kl. 08.48.14.jpg

But in 2D looks like this 🤦‍♂️ I don't get it

Skärmavbild 2023-04-25 kl. 08.48.35.jpg

Skärmavbild 2023-04-25 kl. 08.48.04.jpg
Thanks for any advice 

I'm working in AC25 in SWE vesrion

AC 7 - 27 SWE

MacBook Pro, M4 Pro
1 ACCEPTED SOLUTION

Accepted Solutions
Solution
Miha_M
Advisor

Miha_M_0-1682413492911.png

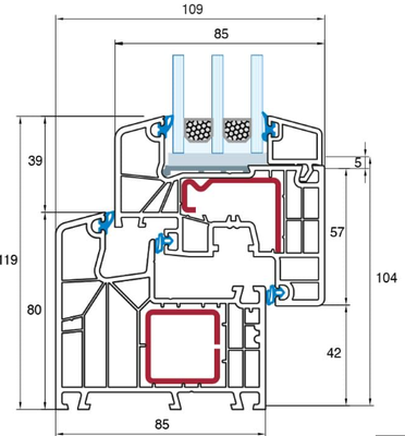
Try to adjust the frame thickness in the red circle (1.) and/or shift the window leaf towards the window frame (2). Windows in my region don't have such a huge gap between the frame and leaf edge, example here:

Miha_M_1-1682413803618.png

The distance you are missing (in green) is the inner side of the window reveal, which you can control, but only by controling the outer reveal size.

| Archicad 4.5 - 29
| HP Z840 | 2× E5-2643 v4 | 64 GB RAM | Quadro M5000 | Windows 10 Pro x64
| HP Z4 G4 | W-2245 | 64 GB RAM | RTX A4000 | Windows 11

View solution in original post

7 REPLIES 7
Miha_M
Advisor

I don't understand the language in your settings pictures, but I think your window frame thickness is the problem. The sill is formed on the edge of the window frame, but you window has a very thick frame, which leaves a big gap between the sill and the window leaf.

| Archicad 4.5 - 29
| HP Z840 | 2× E5-2643 v4 | 64 GB RAM | Quadro M5000 | Windows 10 Pro x64
| HP Z4 G4 | W-2245 | 64 GB RAM | RTX A4000 | Windows 11

This is Swedish.  I tried to find this setting(frame thickness) but i couldn't find out where is it

Skärmavbild 2023-04-25 kl. 09.55.41.jpg

 

AC 7 - 27 SWE

MacBook Pro, M4 Pro

I minimized frame thickness but still I don't think this is right how this should look like.

Do you know how to make smaller the window frame ? It's lock on 20 mm 

Skärmavbild 2023-04-25 kl. 10.12.22.jpgSkärmavbild 2023-04-25 kl. 10.20.46.jpg

AC 7 - 27 SWE

MacBook Pro, M4 Pro

That object seems broken for what you want, unfortunately I don't have an answer.

 

I did want to point out the "Missing" element is part of the wall thickness and is adjusted by the Reveal depth setting, which is common to all opening objects e.g. the inset from the wall face to the face of the window.

 

You may already know this, but I thought it might help.

Apple iMac Intel i9 / macOS Sonoma / AC27UKI (most recent builds.. if they work)

Thanks, I'm just scare that I have 60+ windows with fail 😕 

Anyway thanks for explaining.

AC 7 - 27 SWE

MacBook Pro, M4 Pro
Solution
Miha_M
Advisor

Miha_M_0-1682413492911.png

Try to adjust the frame thickness in the red circle (1.) and/or shift the window leaf towards the window frame (2). Windows in my region don't have such a huge gap between the frame and leaf edge, example here:

Miha_M_1-1682413803618.png

The distance you are missing (in green) is the inner side of the window reveal, which you can control, but only by controling the outer reveal size.

| Archicad 4.5 - 29
| HP Z840 | 2× E5-2643 v4 | 64 GB RAM | Quadro M5000 | Windows 10 Pro x64
| HP Z4 G4 | W-2245 | 64 GB RAM | RTX A4000 | Windows 11

You are right 👍 Thanks I sett 20-50mm and looks much better.

 

Big thanks 🙂

 

Skärmavbild 2023-04-25 kl. 13.05.39.jpgSkärmavbild 2023-04-25 kl. 13.06.06.jpg

 

 

AC 7 - 27 SWE

MacBook Pro, M4 Pro