cancel
Showing results for 
Search instead for 
Did you mean: 
EN
cancel
Showing results for 
Search instead for 
Did you mean: 
Anonymous
Not applicable

Door Marker NCS 15: A Tale of Two Markers?

Hi Folks,

This is weird.

Look at attached two images.


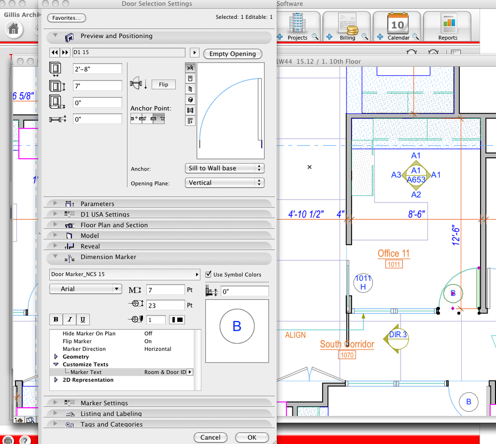
One is of D1 15 swing door, with Door Marker NCS 15, not working.

One is of pocket door, with Door Marker NCS 15, working as desired. Tag shows Zone Number where marker is placed and object ID.
See next message for the image.

Tag shows Zone Number where marker is placed and object ID.

Same marker, two different interfaces. Not listed in duplicate library parts.

Doors shows in schedule, and recognizes Zone Number.

The obvious questions I can already answer:
1. Zones fill the room and are volumetrically appropriate.

D1 15 marker.png
11 Replies 11
Anonymous
Not applicable
Here's the other Door image.

The one that works.
D1 pocket 15 marker works.png
Anonymous
Not applicable
Just to clarify the different interface.

The one that works offers the switch: Door belongs to zone where marker is placed
Erika Epstein
Enthusiast
Are you on the latest build?
Erika
Architect, Consultant
MacBook Pro Retina, 15-inch Yosemite 2.8 GHz Intel Core i7 16 GB 1600 MHz DDR3
Mac OSX 10.11.1
AC5-18
Onuma System

"Implementing Successful Building Information Modeling"
Anonymous
Not applicable
Library and Archicad 15 build 3898 are up to date.

I figure it must be a library problem. The simple question is: Why does the Pocket door marker work, and the D1 door marker not work, when it is the same part?
Erika Epstein
Enthusiast
Nathan,
I can't reproduce this. By any chance do you have duplicates of doors or walls?

Are all the doors set to the same renovation status?
Erika
Architect, Consultant
MacBook Pro Retina, 15-inch Yosemite 2.8 GHz Intel Core i7 16 GB 1600 MHz DDR3
Mac OSX 10.11.1
AC5-18
Onuma System

"Implementing Successful Building Information Modeling"
Anonymous
Not applicable
interesting questions.

No duplicates, doors are both listed as new, and classified as doors.

I also tried using display options to show the zone fill. No change.

This one to send to GS?
Erika Epstein
Enthusiast
Which renovation status are the walls set to?
Erika
Architect, Consultant
MacBook Pro Retina, 15-inch Yosemite 2.8 GHz Intel Core i7 16 GB 1600 MHz DDR3
Mac OSX 10.11.1
AC5-18
Onuma System

"Implementing Successful Building Information Modeling"
Laszlo Nagy
Community Admin
Community Admin
What happens if you take the Door that doesn't work, assign it another Marker, then assign back to it the NCS Marker? Does the missing parameter appear?
Loving Archicad since 1995 - Find Archicad Tips at x.com/laszlonagy
AMD Ryzen9 5900X CPU, 64 GB RAM 3600 MHz, Nvidia GTX 1060 6GB, 500 GB NVMe SSD
2x28" (2560x1440), Windows 10 PRO ENG, Ac20-Ac29
Anonymous
Not applicable
SUCCESS!!!!

OK.

Next question:

Why would the marker/program behave this way?

Didn't find the answer?

Check other topics in this Forum

Back to Forum

Read the latest accepted solutions!

Accepted Solutions

Start a new conversation!